M9 K7, WIELORODZINNY BOLESŁAWA ŚMIAŁEGO - Głogów
Id: 3652
-
Cena Zapytaj
-
Powierzchnia 36.96 m2
-
Typ nieruchomości
nowe mieszkanie
-
Liczba pokoi 2
-
Łazienki
1
Opis nieruchomości
ZNAJDŹ SWOJE MIEJSCE
Poznaj naszą inwestycję przy ulicy Bolesława Śmiałego, kameralny budynek zlokalizowany na osiedlu Żarków. Wybieraj spośród funkcjonalnych mieszkań, w naszej ofercie znajdziesz kawalerki, mieszkania dwu- i trzypokojowe oraz mieszkania z antresolami.
NOWY STANDARD ŻYCIA
W naszym budynku powstaną również komórki lokatorskie oraz parking podziemny. Robimy wszystko tak, aby żyło Ci się w pełnym komforcie. Oprócz tego cały kompleks zostanie zamknięty w kształcie czworoboku, co zapewni mieszkańcom większą prywatność. W środku znajdzie się miejsce przyjazne dla dzieci – nowoczesny plac zabaw, chodniki oraz zieleń.
WSZYSTKO NA WYCIĄGNIĘCIE RĘKI
Spokojne i ciche osiedle, z dala od hałasu miasta, a jednocześnie bliskość wszystkich najpotrzebniejszych miejsc, myślisz, że to niemożliwe? U nas to możliwe. W najbliższej okolicy znajdziesz sklepy, szkołę, przystanki autobusowe, usługi oraz skwery zieleni i miejsca rekreacji. Zasługujesz na to co najlepsze i my jesteśmy gotowi Ci to dać – sprawdź co dla Ciebie przygotowaliśmy.
Dane nieruchomości
Powierzchnia:
36.96 m2
Cena:
Zapytaj
Cena za m2
Zapytaj
Dostępność
Wolne
Typ nieruchomości
nowe mieszkanie
Typ budynku
wielomieszkaniowa
Przeznaczenie
mieszkaniowy
Faza budowy
w budowie
Rok zakończenia budowy
-
Planowany termin oddania do użytku
Zapytaj
Standard
deweloperski
Materiał
-
Ogrzewanie
-
Kanalizacja
-
Kondygnacje
-
Piętro
1
Pokoje
2
Łazienki
1
Dodatkowy obszar
- balkon
- parking wewnętrzny
- komórka lokatorska
Udogodnienia
-
Funkcjonalności
- aneks kuchenny
Powierzchnia balkonów:
4.14 m2
Dane adresowe
Miejscowość:
Głogów
Kod kraju:
PL
Kod pocztowy:
67-200
Województwo:
dolnośląskie
Ulica:
Bolesława Śmiałego
Powiat:
głogowski
O inwestycji
Oferty nieruchomości
- Nazwa
- Powierzchnia użytkowa
- Dodatkowa powierzchnia
- Liczba pokoi
- Piętro
- Cena brutto
- Dostępność
- M1 K6
- 46.53 m2
-
Taras: 6.43 m2
- 2
- 0
- Wolne
- Zobacz
- M1 K7
- 50.82 m2
-
Taras: 6.43 m2
- 2
- 0
- Wolne
- Zobacz
- M1 K8
- 39.06 m2
- 2
- 0
- Wolne
- Zobacz
- M2 K7
- 44.83 m2
-
Taras: 6.43 m2
- 2
- 0
- Wolne
- Zobacz
- M3 K6
- 58.3 m2
-
Balkon: 4.14 m2
- 3
- 1
- Wolne
- Zobacz
- M3 K7
- 32.67 m2
-
Taras: 6.43 m2
- 1
- 0
- Wolne
- Zobacz
- M3 K8
- 65.28 m2
-
Taras: 6.2 m2
- 3
- 0
- Wolne
- Zobacz
- M4 K7
- 37.09 m2
-
Taras: 6.13 m2
- 2
- 0
- Wolne
- Zobacz
- M4 K8
- 41.31 m2
-
Taras: 6.2 m2
- 2
- 0
- Wolne
- Zobacz
- M5 K7
- 43.33 m2
-
Taras: 6.43 m2
- 2
- 0
- Wolne
- Zobacz
- M6 K6
- 58.14 m2
-
Balkon: 4.14 m2
- 3
- 2
- Wolne
- Zobacz
- M6 K7
- 50.72 m2
-
Balkon: 4.14 m2
- 2
- 1
- Wolne
- Zobacz
- M7 K6
- 43.11 m2
-
Balkon: 4.14 m2
- 2
- 2
- Wolne
- Zobacz
- M7 K7
- 44.74 m2
-
Balkon: 4.14 m2
- 2
- 1
- Wolne
- Zobacz
- M8 K6
- 53.56 m2
-
Balkon: 4.14 m2
- 2
- 2
- Wolne
- Zobacz
- M8 K7
- 40.24 m2
-
Balkon: 4.14 m2
- 2
- 1
- Wolne
- Zobacz
- M9 K6
- 68.58 m2
-
Balkon: 4.14 m2
- 4
- 3
- Wolne
- Zobacz
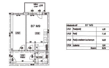
- M9 K7
- 36.96 m2
-
Balkon: 4.14 m2
- 2
- 1
- Wolne
- Zobacz
- M9 K8
- 38.76 m2
- 2
- 2
- Wolne
- Zobacz
- M10 K6
- 47.25 m2
-
Balkon: 4.14 m2
- 2
- 3
- Wolne
- Zobacz
- M10 K7
- 53.26 m2
-
Balkon: 4.14 m2
- 3
- 1
- Wolne
- Zobacz
- M11 K6
- 74.46 m2
-
Balkon: 4.14 m2
- 3
- 3
- Wolne
- Zobacz
- M11 K7
- 50.63 m2
-
Balkon: 4.14 m2
- 2
- 2
- Wolne
- Zobacz
- M11 K8
- 64.97 m2
-
Balkon: 4.14 m2
- 3
- 2
- Wolne
- Zobacz
- M12 K7
- 44.64 m2
-
Balkon: 4.14 m2
- 2
- 2
- Wolne
- Zobacz
- M12 K8
- 41.02 m2
-
Balkon: 4.14 m2
- 2
- 2
- Wolne
- Zobacz
- M13 K7
- 40.14 m2
-
Balkon: 4.14 m2
- 2
- 2
- Wolne
- Zobacz
- M13 K8
- 59.38 m2
- 2
- 3
- Wolne
- Zobacz
- M14 K7
- 36.81 m2
-
Balkon: 4.14 m2
- 2
- 2
- Wolne
- Zobacz
- M14 K8
- 61.96 m2
-
Balkon: 4.14 m2
- 3
- 3
- Wolne
- Zobacz
- M15 K7
- 53.16 m2
-
Balkon: 4.14 m2
- 3
- 2
- Wolne
- Zobacz
- M16 K7
- 74.88 m2
-
Balkon: 4.14 m2
- 3
- 3
- Wolne
- Zobacz
- M16 K8
- 62.9 m2
-
Balkon: 4.14 m2
- 2
- 3
- Wolne
- Zobacz
- M17 K7
- 54.75 m2
-
Balkon: 4.14 m2
- 2
- 3
- Wolne
- Zobacz
- M18 K7
- 61.77 m2
-
Balkon: 4.14 m2
- 2
- 3
- Wolne
- Zobacz
- M19 K7
- 52.13 m2
-
Balkon: 4.14 m2
- 2
- 3
- Wolne
- Zobacz
- M20 K7
- 66.3 m2
-
Balkon: 4.14 m2
- 3
- 3
- Wolne
- Zobacz
