B.2, 3Q2023 - Gdańsk
Id: 4206
-
Cena 560700 zł
-
Powierzchnia 41.12 m2
-
Typ nieruchomości
nowe mieszkanie
-
Liczba pokoi 2
-
Łazienki
1
-
Cena za m2 13636 zł
Opis nieruchomości
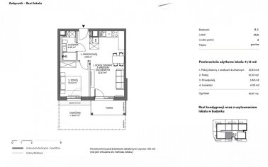
Układ mieszkania:
- salon z aneksem kuchennym,
- sypialnia,
- łazienka,
- korytarz,
- ogródek (19 m2).
Piętro: 0 / 3
Liczba pokoi: 2
Termin realizacji inwestycji: 3Q2023
Dodatkowe informacje:
Miejsce postojowe podziemne: 39 900 PLN
Miejsce postojowe naziemne: 18 000 PLN
Komórka lokatorska: 3 500 zł/m2
Dane nieruchomości
Powierzchnia:
41.12 m2
Cena:
560700 zł
Cena za m2
13636 zł
Dostępność
Wolne
Typ nieruchomości
nowe mieszkanie
Typ budynku
wielomieszkaniowa
Przeznaczenie
mieszkaniowy
Faza budowy
zakończona
Rok zakończenia budowy
2023
Planowany termin oddania do użytku
Zapytaj
Standard
deweloperski
Materiał
-
Ogrzewanie
-
Kanalizacja
-
Kondygnacje
3
Piętro
0
Pokoje
2
Łazienki
1
Dodatkowy obszar
- taras
- ogródek
- miejsce postojowe w garażu
- garaż
- komórka lokatorska
Udogodnienia
-
Funkcjonalności
- aneks kuchenny
Powierzchnia ogrodów:
19.87 m2
Dane adresowe
Miejscowość:
Gdańsk
Kod kraju:
PL
Kod pocztowy:
80-041
Województwo:
Pomorskie
Ulica:
Kadmowa
Powiat:
Gdański
Mapay ciepła inwestycji
Dzięki widokowi map ciepła możesz sprawdzić mocne i spłabe strony lokalizacji.
O inwestycji
Oferty nieruchomości
- Nazwa
- Powierzchnia użytkowa
- Dodatkowa powierzchnia
- Liczba pokoi
- Piętro
- Cena brutto
- Dostępność
- B.1
- 58.65 m2
-
Balkon: 6.7 m2
- 3
- 1
- 740600 zł
- Wolne
- Zobacz
- B.2
- 41.12 m2
-
Ogród: 19.87 m2
- 2
- 0
- 560700 zł
- Wolne
- Zobacz
- B.3
- 41.12 m2
-
Ogród: 19.87 m2
- 2
- 0
- 560700 zł
- Wolne
- Zobacz
- B.4
- 41.12 m2
-
Ogród: 19.87 m2
- 2
- 0
- 560700 zł
- Wolne
- Zobacz
