Dom (segment środkowy), Osiedle Ludwinowska 2 - Warszawa
Id: 4216
-
Cena 1330000 zł
-
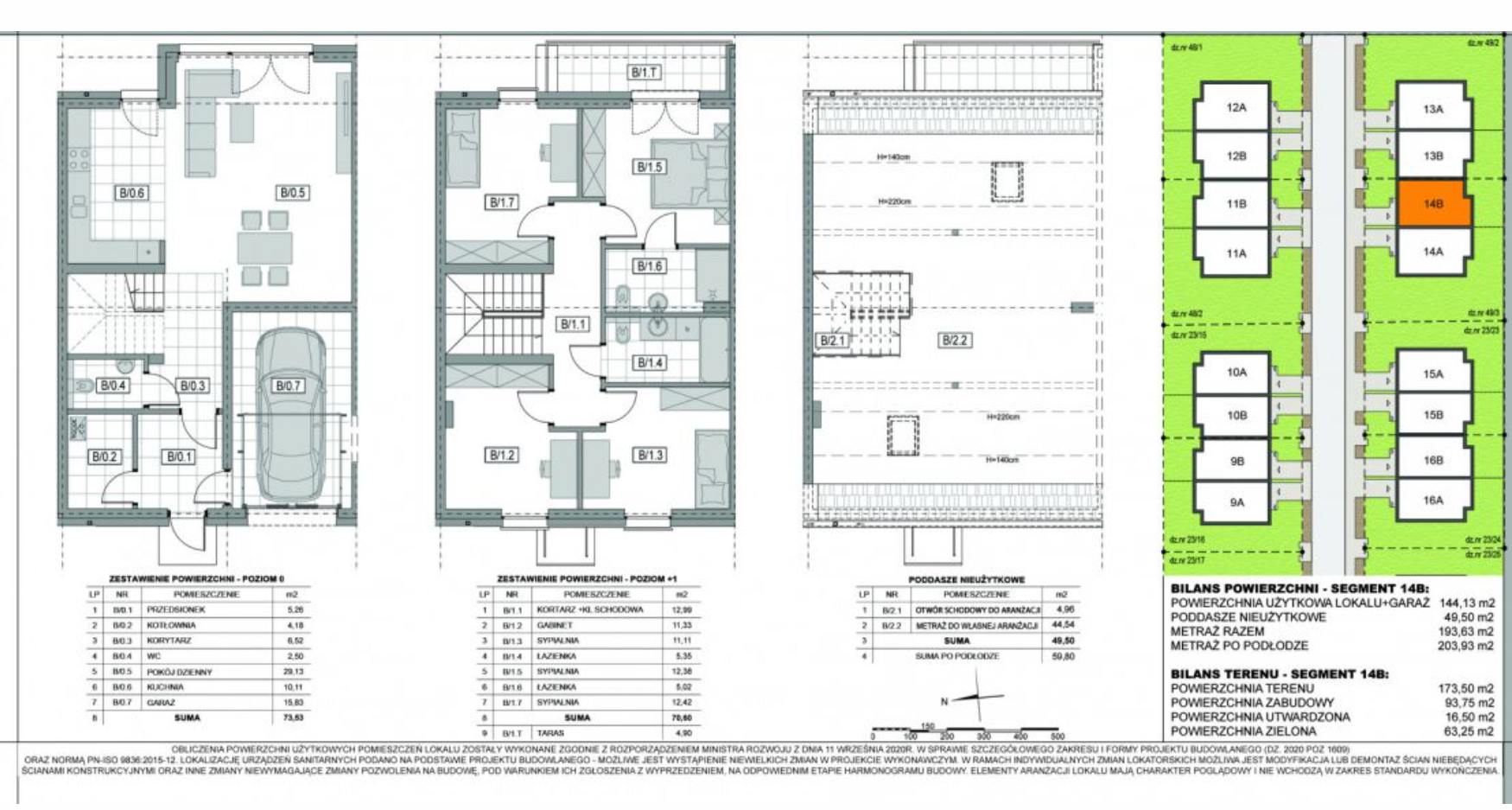
Powierzchnia 144.13 m2
-
Typ nieruchomości
nowy dom
-
Liczba pokoi 5
-
Łazienki
3
-
Cena za m2 9228 zł
Opis nieruchomości
Dom o powierzchni użytkowej 144,13 m2 (pow. całkowita 193,63 m2), pow. działki 173,50 m2
Parter: przestrzeń dzienna (salon z aneksem kuchennym, WC, wiatrołap, kotłowania garaż)
Poziom +1: część prywatna (4 sypialnie, 2 łazienki)
Poziom +2: część prywatna (poddasze nieużytkowe)
Dane nieruchomości
Powierzchnia:
144.13 m2
Cena:
1330000 zł
Cena za m2
9228 zł
Dostępność
-
Typ nieruchomości
nowy dom
Typ budynku
szeregowiec
Przeznaczenie
mieszkaniowy
Faza budowy
częściowo zakończona
Rok zakończenia budowy
2023
Planowany termin oddania do użytku
Zapytaj
Standard
do uzgodnienia
Materiał
-
Ogrzewanie
-
Kanalizacja
-
Kondygnacje
-
Piętro
0
Pokoje
5
Łazienki
3
Dodatkowy obszar
- taras
- poddasze
- ogródek
- strych
- parking zewnętrzny
- garaż
Udogodnienia
- teren ogrodzony
Funkcjonalności
- aneks kuchenny
- dodatkowa łazienka
- dwupoziomowe
- dwustronne
- funkcjonalny układ pomieszczeń
Powierzchnia tarasów:
4.9 m2
Powierzchnia ogrodów:
173.5 m2
Dane adresowe
Miejscowość:
Warszawa
Kod kraju:
PL
Kod pocztowy:
02-856
Województwo:
mazowieckie
Ulica:
Ludwinowska
Powiat:
Warszawa
Nr budynku:
47
