Lokal komercyjny U1, Adatex S.A. - Dąbrowa Górnicza
-
Cena 10183 zł
-
Powierzchnia 172.59 m2
-
Typ nieruchomości
lokal użytkowy
-
Cena za m2 59 zł
Opis nieruchomości
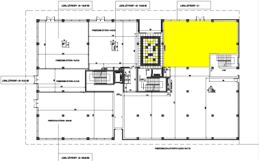
Lokal U1
Powierzchnia – 172,59 m²
Cena wynajmu za m2 – 59 zł
Cena wynajmu – 10182,81 zł
PROMOCJA WAKACYJNA
Cena wynajmu za m2 – 49 zł
Cena wynajmu – 8456,91 zł
Przeznaczenie – lokal gastronomiczny, biurowy, handlowy, usługowy
Wejście – bezpośrednio z ulicy
Piętro – parter
Umiejscowienie lokalu – w biurowcu
Stan wykończenia – gotowy
Typ ogłoszeniodawcy – deweloper
Dostępne od – zaraz
Informacje dodatkowe:
Rok budowy – 2020
Media – prąd, Internet, telefon, kanalizacja, woda
Zabezpieczenia – drzwi i okna antywłamaniowe, monitoring, ochrona
Dodatkowo – klimatyzacja, dojazd asfaltowy, winda, ogrzewanie, parking, witryna
Biura i lokale komercyjne
Wyróżnij się niebanalnym, nowoczesnym i komfortowym biurem, niedaleko ważnych instytucji oraz terenów rekreacyjnych. Kierujemy do państwa propozycje sprzedaży lub wynajmu lokali użytkowych oraz powierzchni handlowo usługowych w nowym budynku klasy A w Dąbrowie Górniczej przy ul. Granicznej.
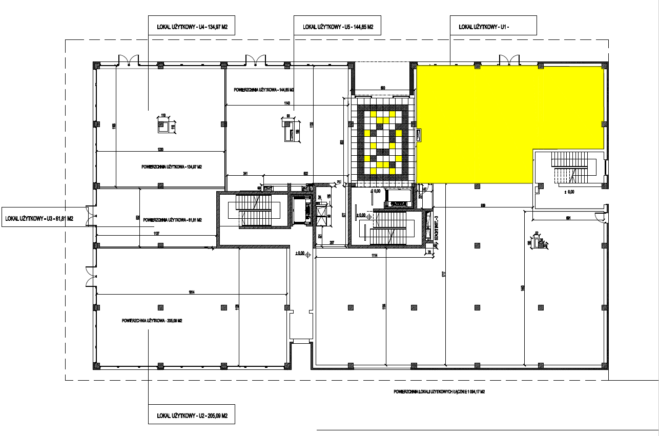
Na 3 kondygnacjach oferujemy lokale z dużymi dobrze widocznymi przeszkleniami od ulicy Granicznej i Alei Zagłębia Dąbrowskiego. Powierzchnie biurowe i lokale handlowe posiadają metraże od 60 m2, aż do 600 m2.
Graniczna 34B to nowoczesny budynek mieszkaniowo-usługowy nawiązujący swoją architekturą do światowej klasy inwestycji. Został doskonale wkomponowany kompozycyjnie w całe otoczenie innowacyjnego miasta. Inwestycja została oddana do użytkowania w 2020 r. Budynek w części usługowej jest w pełni skomercjalizowany. Ma dwa piętra oraz parter, dużą ilość miejsc postojowych na zewnątrz, a także dostęp do drogi głównej.
Kondygnacje komercyjne zaprojektowane zostały jako przestrzenie typu open space. Przyszli właściciele/najemcy będą mieli możliwość elastycznego dostosowania ich do własnych potrzeb, tworząc ergonomiczne miejsca pracy, siłownie czy eleganckie gabinety.
Wygląd każdego piętra można modyfikować. Pozwala to na swobodę wyboru pomiędzy powierzchnią typu open space lub mniejszymi, kameralnymi pomieszczeniami. Łącznie do użytku oddane zostało ok. 3000 m2. przestrzeni lokalowych. Dostępne gotowe powierzchnie posiadają kompleksową infrastrukturą. Zapewniamy przestrzeń idealną do prowadzenia działalności m.in. medycznej, biurowej, rekreacyjnej, handlowej, magazynowej.
Lokalizacja
Obiekt zlokalizowany jest na powierzchni 1,2 ha, z biegu ulicy Granicznej i Alei Zagłębia Dąbrowskiego, w pobliżu centrum miasta Dąbrowy Górniczej.
Lokalizacja jest dużym atutem, gdyż budynek jest znakomicie skomunikowany z centrum miasta.
• skrzyżowanie ulicy Graniczna oraz Alei Zagłębia Dąbrowskiego
• 100 m od Urzędu Miasta
• 2 km do drogi krajowej 94
• 4 km od autostrady A4
• 2 km do centrum Dąbrowy Górniczej
• 2,5 km do CH Pogoria
• 2 km do Jeziora Pogoria
Ponadto inwestycja powstała w pobliżu wielu nowych osiedli zamieszkiwanych przez młode małżeństwa. Okolica rozwija się bardzo dynamicznie z tendencją wzrostową w zakresie kolejnych inwestycji mieszkaniowych.
Model biznesowy:
• zakup lub wynajem lokalu w niepowtarzalnej inwestycji w dynamicznie rozwijającym się mieście Dąbrowa Górnicza;
• obiekt w pełni skomercjalizowany;
• w sąsiednich lokalach bardzo dobrze prosperujący najemcy, przyciągający bardzo dużą ilość potencjalnych klientów.
Dodatkowe atrybuty budynku:
• monitoring 24/7
• alarm
• klimatyzacja
• winda
• podjazd dla osób niepełnosprawnych
Gwarantujemy dodatkowy dostęp do:
• dobrze wyposażonej kuchni z czajnikiem, lodówką i mikrofalówką,
• łazienki, również dla osób niepełnosprawnych,
• naziemnego miejsca parkingowego.
Dane nieruchomości
- parking zewnętrzny
- klimatyzacja
- internet wifi
- winda
- monitoring
- dodatkowa łazienka
- funkcjonalny układ pomieszczeń
- podjazd dla niepełnosprawnych
Dane adresowe
O inwestycji
Oferty nieruchomości
- Nazwa
- Powierzchnia użytkowa
- Dodatkowa powierzchnia
- Liczba pokoi
- Piętro
- Cena brutto
- Dostępność
- Lokal komercyjny U1
- 172.59 m2
- 0
- 10183 zł
- Wolne
- Zobacz
- Lokal komercyjny U2
- 205.09 m2
- 0
- 10049 zł
- Wolne
- Zobacz
- Lokal komercyjny U11
- 182.21 m2
- 1
- 8928 zł
- Wolne
- Zobacz
- Lokal komercyjny U12
- 57.74 m2
- 1
- 2829 zł
- Wolne
- Zobacz
- Lokal komercyjny U13
- 117.25 m2
- 1
- 5745 zł
- Wolne
- Zobacz
- Lokal komercyjny U14
- 265.08 m2
- 1
- 12989 zł
- Wolne
- Zobacz
- Lokal komercyjny U15
- 348.49 m2
- 1
- 17076 zł
- Wolne
- Zobacz
- Lokal komercyjny U16A
- 63.11 m2
- 1
- 3093 zł
- Wolne
- Zobacz
- Lokal komercyjny U17
- 129.23 m2
- 1
- 5963 zł
- Wolne
- Zobacz







