Dom nr 9, Domy w Redłowie - Gdynia
-
Cena 2550000 zł
-
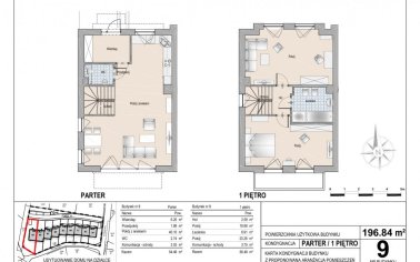
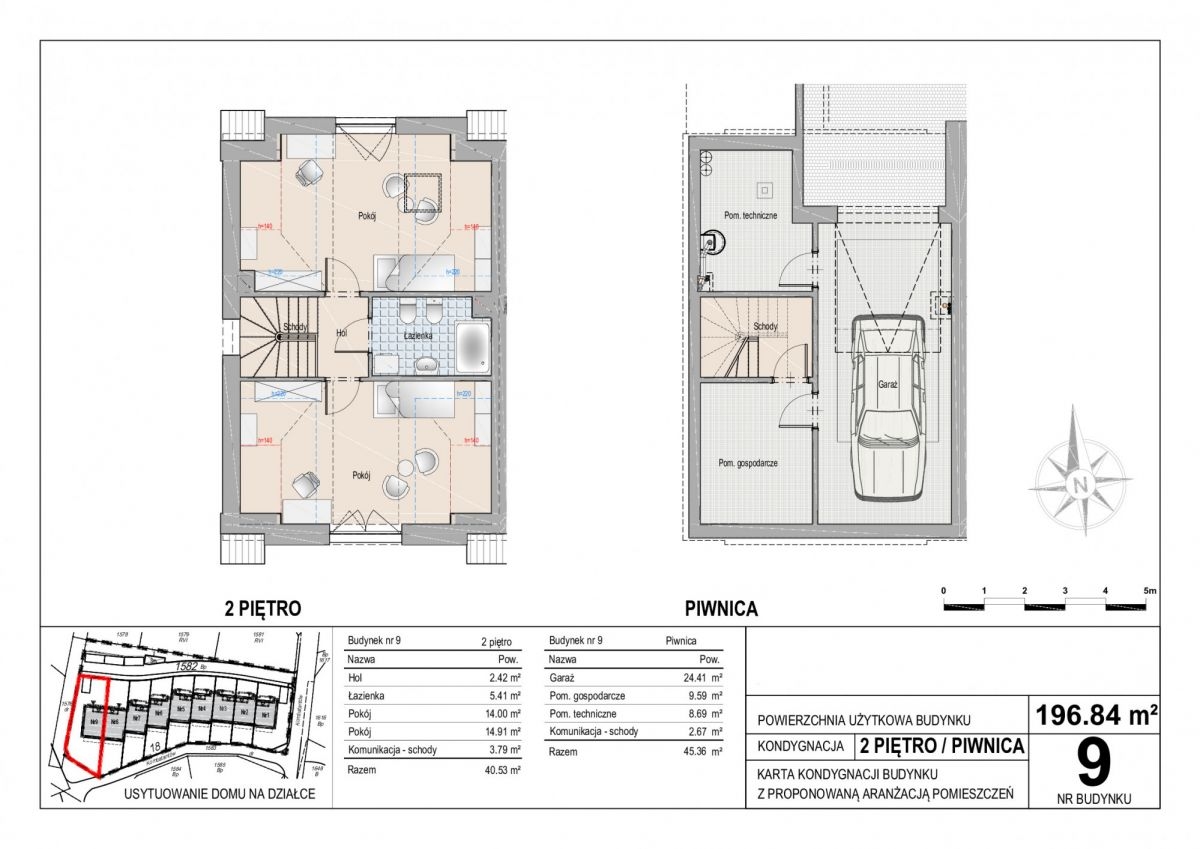
Powierzchnia 196.84 m2
-
Typ nieruchomości
nowy dom
-
Liczba pokoi 5
-
Łazienki
3
-
Cena za m2 12955 zł
Opis nieruchomości
Nowoczesne Ogrodzone Osiedle Domów w Zabudowie Szeregowej!
Zakup od dewelopera, bez 2% podatku PCC, bez prowizji.
Atuty inwestycji:
- Dom wyposażony będzie w ogrzewanie podłogowe oraz pompę ciepła.
- Okna trzyszybowe PCV.
- Inwestycja obejmuje jedynie 9 domów szeregowych jednorodzinnych.
Układ domu:
Parter: Przestrzeń dzienna z kuchnią, toaleta, wiatrołap, garderoba.
Poziom 1: Łazienka oraz 2 sypialnie.
Poziom 2: Łazienka oraz 2 pokoje/sypialnie.
Poziom -1: Garaż, pomieszczenie gospodarcze oraz techniczne.
Dodatkowe informacje:
Termin realizacji inwestycji: 2Q2024
Lokalizacja:
Dzielnica Gdynia Redłowo jest niezwykle atrakcyjnym miejscem do zamieszkania, usytuowanym w pobliżu morza i plaży oraz licznych zielonych terenów rekreacyjnych. Rezerwat Kępa Redłowska z przepięknym lasem bukowym i licznymi wąwozami jest idealnym miejscem na spacery i wycieczki rowerowe. Klifem Orłowskim.
Redłowo ma świetnie rozwiniętą infrastrukturą drogową. Sieć autobusowo-trolejbusowa uzupełniona Szybką Koleją Miejską umożliwia dojazd do całego Trójmiasta.
W razie jakichkolwiek pytań zachęcamy do kontaktu pod podany niżej numer.
Serdecznie zapraszamy na prezentacje inwestycji!
Dane nieruchomości
- garaż
- wideo domofon
- aneks kuchenny
- dodatkowa łazienka
- dwupoziomowe
- garderoba

