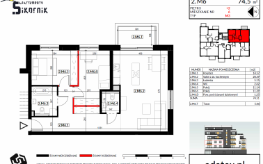
Mieszkanie 74,51 m2 2.M6, Osiedle Apartamenty Sikornik Gliwice - Gliwice
Id: 4301
-
Cena 596080 zł
-
Powierzchnia 74.51 m2
-
Typ nieruchomości
nowe mieszkanie
-
Liczba pokoi 3
-
Cena za m2 8000 zł
Opis nieruchomości
Oferujemy na sprzedaż nowe 3 pokojowe mieszkanie, na 2 piętrze o powierzchni 74,51 m2 a w nim m.in.:
- salon z aneksem kuchennym
- łazienka
- 2 oddzielne pokoje
- przedpokój
- balkon o powierzchni 5,06 m2
Standard deweloperski, w cenie mieszkania, a w nim:
- przestronny, wykafelkowany balkon z punktem elektrycznym oraz światłem wykończone w najwyższym standardzie
- osiedle monitorowane
- ogrzewanie miejskie
- zagospodarowana przestrzeń wspólna
- kostka brukowa na chodnikach
- oświetlenie
- winda
- wszystkie instalacje rozprowadzone po mieszkaniu
- kaloryfery
- ciepła woda z sieci miejskiej
- drzwi antywłamaniowe z atestem
- tynk maszynowy zatarty na gładko na ścianach i sufitach
- domofon/wideofon
Dane nieruchomości
Powierzchnia:
74.51 m2
Cena:
596080 zł
Cena za m2
8000 zł
Dostępność
Wolne
Typ nieruchomości
nowe mieszkanie
Typ budynku
wielomieszkaniowa
Przeznaczenie
mieszkaniowy
Faza budowy
w budowie
Rok zakończenia budowy
2024
Planowany termin oddania do użytku
Zapytaj
Standard
deweloperski
Materiał
żelbet
Ogrzewanie
centralne miejskie
Kanalizacja
miejska
Kondygnacje
-
Piętro
2
Pokoje
3
Łazienki
-
Dodatkowy obszar
- balkon
- parking zewnętrzny
- miejsce postojowe w garażu
Udogodnienia
- wideo domofon
- winda
- monitoring
Funkcjonalności
- aneks kuchenny
- funkcjonalny układ pomieszczeń
Powierzchnia balkonów:
5.06 m2
Dane adresowe
Miejscowość:
Gliwice
Kod kraju:
PL
Kod pocztowy:
44-122
Województwo:
śląskie
Ulica:
Kormoranów
Powiat:
Gliwicki
Nr budynku:
4 B
Mapay ciepła inwestycji
Dzięki widokowi map ciepła możesz sprawdzić mocne i spłabe strony lokalizacji.
O inwestycji
Oferty nieruchomości
- Nazwa
- Powierzchnia użytkowa
- Dodatkowa powierzchnia
- Liczba pokoi
- Piętro
- Cena brutto
- Dostępność
- Mieszkanie 54,50 m2 3.M16
- 54.5 m2
-
Balkon: 5.06 m2
- 3
- 4
- 465975 zł
- Wolne
- Zobacz
- Mieszkanie 64,62 m2 3.M11
- 64.62 m2
-
Balkon: 8.05 m2
- 3
- 3
- 536346 zł
- Wolne
- Zobacz
- Mieszkanie 68,82 m2 1.M5
- 68.82 m2
-
Balkon: 5.06 m2
- 3
- 1
- 554001 zł
- Wolne
- Zobacz
- Mieszkanie 68,82 m2 2.M10
- 68.82 m2
-
Balkon: 8.85 m2
- 3
- 2
- 557442 zł
- Wolne
- Zobacz
- Mieszkanie 70,02 m2 1.M4
- 70.02 m2
-
Balkon: 5.06 m2
- 3
- 1
- 577665 zł
- Wolne
- Zobacz
- Mieszkanie 70,02 m2 2.M9
- 70.02 m2
-
Balkon: 5.06 m2
- 3
- 2
- 560160 zł
- Wolne
- Zobacz
- Mieszkanie 71,78 m2 3.M12
- 71.78 m2
-
Balkon: 5.06 m2
- 3
- 3
- 581418 zł
- Wolne
- Zobacz
- Mieszkanie 71,78 m2 4.M17
- 71.78 m2
-
Balkon: 5.06 m2
- 3
- 4
- 595774 zł
- Wolne
- Zobacz
- Mieszkanie 73,72 m2 1.M2
- 73.72 m2
-
Balkon: 5.06 m2
- 3
- 1
- 604504 zł
- Wolne
- Zobacz
- Mieszkanie 73,72 m2 2.M7
- 73.72 m2
-
Balkon: 5.06 m2
- 3
- 2
- 589760 zł
- Wolne
- Zobacz
- Mieszkanie 74,51 m2 1.M1
- 74.51 m2
-
Balkon: 10.97 m2
- 3
- 1
- 614707 zł
- Wolne
- Zobacz
- Mieszkanie 74,51 m2 2.M6
- 74.51 m2
-
Balkon: 5.06 m2
- 3
- 2
- 596080 zł
- Wolne
- Zobacz







