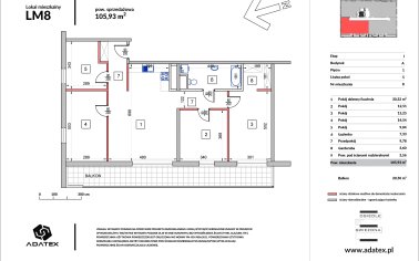
Mieszkanie 105,93 m2 LM8 budynek A, Osiedle Gwiezdna Sosnowiec - Sosnowiec
Id: 4318
-
Cena 797992 zł
-
Powierzchnia 105.93 m2
-
Typ nieruchomości
nowe mieszkanie
-
Liczba pokoi 4
-
Łazienki
1
-
Cena za m2 7533 zł
Opis nieruchomości
Oferujemy na sprzedaż nowe 5 pokojowe mieszkanie na 1 piętrze o powierzchni 105,93 m2 a w nim m.in.:
- salon z aneksem kuchennym
- łazienka
- 4 oddzielne pokoje
- przedpokój
- balkon o powierzchni 11,30 m2
Standard deweloperski, w cenie mieszkania, a w nim:
- przestronny, wykafelkowany balkon z punktem elektrycznym oraz światłem wykończone w najwyższym standardzie
- osiedle monitorowane
- ogrzewanie miejskie
- zagospodarowana przestrzeń wspólna
- kostka brukowa na chodnikach
- oświetlenie
- winda
- wszystkie instalacje rozprowadzone po mieszkaniu
- kaloryfery
- ciepła woda z sieci miejskiej
- drzwi antywłamaniowe z atestem
- tynk maszynowy zatarty na gładko na ścianach i sufitach
- domofon/wideofon
Dane nieruchomości
Powierzchnia:
105.93 m2
Cena:
797992 zł
Cena za m2
7533 zł
Dostępność
Wolne
Typ nieruchomości
nowe mieszkanie
Typ budynku
wielomieszkaniowa
Przeznaczenie
mieszkaniowy
Faza budowy
zakończona
Rok zakończenia budowy
2022
Planowany termin oddania do użytku
Zapytaj
Standard
deweloperski
Materiał
żelbet
Ogrzewanie
centralne miejskie
Kanalizacja
miejska
Kondygnacje
-
Piętro
1
Pokoje
4
Łazienki
1
Dodatkowy obszar
- balkon
- parking zewnętrzny
- miejsce postojowe w garażu
Udogodnienia
- wideo domofon
- winda
- monitoring
Funkcjonalności
- aneks kuchenny
- funkcjonalny układ pomieszczeń
Powierzchnia balkonów:
11.3 m2
Dane adresowe
Miejscowość:
Sosnowiec
Kod kraju:
PL
Kod pocztowy:
41-200
Województwo:
śląskie
Ulica:
Gwiezdna
Powiat:
Sosnowiecki
Nr budynku:
18 E
Mapay ciepła inwestycji
Dzięki widokowi map ciepła możesz sprawdzić mocne i spłabe strony lokalizacji.
O inwestycji
Oferty nieruchomości
- Nazwa
- Powierzchnia użytkowa
- Dodatkowa powierzchnia
- Liczba pokoi
- Piętro
- Cena brutto
- Dostępność
- Mieszkanie 47,72 m2 LM12 budynek A
- 47.72 m2
-
Balkon: 24.9 m2
- 1
- 2
- 410392 zł
- Wolne
- Zobacz
- Mieszkanie 47,78 m2 LM16 budynek A
- 47.78 m2
-
Balkon: 24.9 m2
- 1
- 2
- 365517 zł
- Wolne
- Zobacz
- Mieszkanie 50,10 m2 LM1 budynek A
- 50.1 m2
-
Balkon: 5 m2
- 2
- 0
- 360720 zł
- Wolne
- Zobacz
- Mieszkanie 55,47 m2 LM32 budynek A
- 55.47 m2
-
Balkon: 11.8 m2
- 1
- 5
- 421572 zł
- Wolne
- Zobacz
- Mieszkanie 55,55 m2 LM25 budynek A
- 55.55 m2
-
Balkon: 11.8 m2
- 1
- 4
- 419402 zł
- Wolne
- Zobacz
- Mieszkanie 55,56 m2 LM46 budynek A
- 55.56 m2
-
Balkon: 11.8 m2
- 1
- 7
- 430590 zł
- Wolne
- Zobacz
- Mieszkanie 65,24 m2 LM33 budynek A
- 65.24 m2
-
Balkon: 12.3 m2
- 3
- 5
- 489300 zł
- Wolne
- Zobacz
- Mieszkanie 65,30 m2 LM47 budynek A
- 65.3 m2
-
Balkon: 12.3 m2
- 3
- 7
- 496280 zł
- Wolne
- Zobacz
- Mieszkanie 65,77 m2 LM6 budynek A
- 65.77 m2
-
Balkon: 11 m2
- 3
- 1
- 480121 zł
- Wolne
- Zobacz
- Mieszkanie 80,08 m2 LM55 budynek A
- 80.08 m2
-
Balkon: 10.97 m2
- 3
- 8
- 680170 zł
- Wolne
- Zobacz
- Mieszkanie 86,35 m2 LM24 budynek A
- 65.24 m2
-
Balkon: 18.7 m2
- 3
- 3
- 630355 zł
- Wolne
- Zobacz
- Mieszkanie 89,89 m2 LM54 budynek A
- 89.89 m2
-
Balkon: 13.91 m2
- 3
- 8
- 742592 zł
- Wolne
- Zobacz
- Mieszkanie 101,75 m2 LM7 budynek A
- 101.75 m2
-
Balkon: 20.8 m2
- 4
- 1
- 737687 zł
- Wolne
- Zobacz
- Mieszkanie 105,93 m2 LM8 budynek A
- 105.93 m2
-
Balkon: 11.3 m2
- 4
- 1
- 797992 zł
- Wolne
- Zobacz
- Mieszkanie 119,32 m2 LM4 budynek A
- 119.32 m2
-
Balkon: 47 m2
- 4
- 0
- 978424 zł
- Wolne
- Zobacz





