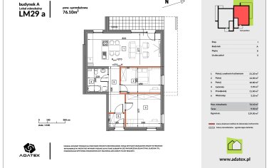
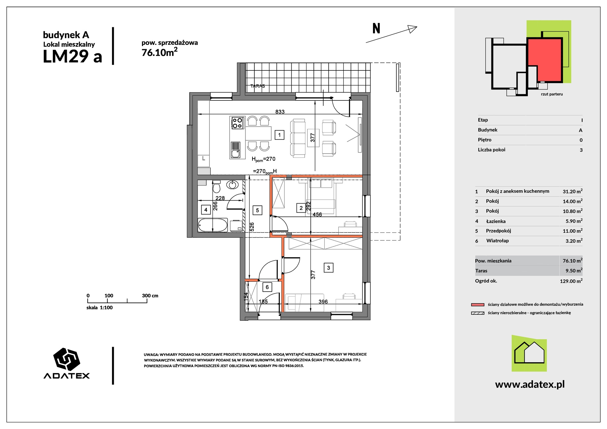
Mieszkanie 76,10 m2 LM29a budynek A, Osiedle Zielona Podkowa Otrębusy - Otrębusy
Id: 4342
-
Cena 753390 zł
-
Powierzchnia 76.1 m2
-
Typ nieruchomości
nowe mieszkanie
-
Liczba pokoi 2
-
Łazienki
1
-
Cena za m2 9900 zł
Opis nieruchomości
Oferujemy na sprzedaż nowe mieszkanie na parterze o powierzchni 76,10 m2 a w nim m.in.:
- salon z aneksem kuchennym
- łazienka
- 2 osobne pokoje
- wiatrołap
- taras i ogród.
W cenie mieszkania:
- przestronny ogród 129,00 m2
- miejsce parkingowe
- osiedle zamknięte i monitorowane ze stróżówką
- system nawadniania trawy ze studni głębinowej (zraszacze)
- automatyczne rolety zewnętrzne sterowane pilotem na wszystkie okna
- dwufunkcyjny piec grzewczy z elektronicznym sterownikiem
- zawsze zielona trawa z rolki
- żywopłot wokół domu odgradzający od sąsiadów
- zagospodarowana przestrzeń wspólna
- kostka brukowa na chodnikach
- oświetlenie
- oznakowanie ulic
- balkony i tarasy wykończone w najwyższym standardzie
- wideofon.
Dane nieruchomości
Powierzchnia:
76.1 m2
Cena:
753390 zł
Cena za m2
9900 zł
Dostępność
Wolne
Typ nieruchomości
nowe mieszkanie
Typ budynku
szeregowiec
Przeznaczenie
mieszkaniowy
Faza budowy
w budowie
Rok zakończenia budowy
2024
Planowany termin oddania do użytku
Zapytaj
Standard
deweloperski
Materiał
zróżnicowany
Ogrzewanie
gazowe
Kanalizacja
miejska
Kondygnacje
2
Piętro
0
Pokoje
2
Łazienki
1
Dodatkowy obszar
- taras
- ogródek
- parking zewnętrzny
Udogodnienia
- wideo domofon
- ochrona całodobowa
- monitoring
- teren ogrodzony
Funkcjonalności
- aneks kuchenny
- regularny układ
- funkcjonalny układ pomieszczeń
Powierzchnia tarasów:
9.5 m2
Powierzchnia ogrodów:
129 m2
Dane adresowe
Miejscowość:
Otrębusy
Kod kraju:
PL
Kod pocztowy:
05-807
Województwo:
mazowieckie
Ulica:
Natalińska
Powiat:
Pruszkowski
Mapay ciepła inwestycji
Dzięki widokowi map ciepła możesz sprawdzić mocne i spłabe strony lokalizacji.
O inwestycji
Oferty nieruchomości
- Nazwa
- Powierzchnia użytkowa
- Dodatkowa powierzchnia
- Liczba pokoi
- Piętro
- Cena brutto
- Dostępność
- Mieszkanie 62,60 m2 LM32a budynek B
- 62.6 m2
-
Taras: 4 m2Ogród: 120 m2
- 2
- 0
- 619740 zł
- Wolne
- Zobacz
- Mieszkanie 62,60 m2 LM33a budynek B
- 62.6 m2
-
Taras: 7.5 m2Ogród: 104 m2
- 2
- 0
- 619740 zł
- Wolne
- Zobacz
- Mieszkanie 62,60 m2 LM34a budynek B
- 62.6 m2
-
Taras: 4 m2Ogród: 117 m2
- 2
- 0
- 619740 zł
- Wolne
- Zobacz
- Mieszkanie 62,60 m2 LM35a budynek B
- 62.6 m2
-
Taras: 7.5 m2Ogród: 104 m2
- 2
- 0
- 619740 zł
- Wolne
- Zobacz
- Mieszkanie 62,60 m2 LM36a budynek B
- 62.6 m2
-
Taras: 4 m2Ogród: 120 m2
- 2
- 0
- 619740 zł
- Wolne
- Zobacz
- Mieszkanie 62,60 m2 LM37a budynek B
- 62.6 m2
-
Taras: 7.5 m2Ogród: 102 m2
- 2
- 0
- 619740 zł
- Wolne
- Zobacz
- Mieszkanie 62,60 m2 LM56 a budynek C
- 62.6 m2
-
Taras: 4 m2Ogród: 109 m2
- 2
- 0
- 619740 zł
- Wolne
- Zobacz
- Mieszkanie 62,60 m2 LM57 a budynek C
- 62.6 m2
-
Taras: 7.5 m2Ogród: 73 m2
- 2
- 0
- 619740 zł
- Wolne
- Zobacz
- Mieszkanie 76,10 m2 LM28a budynek A
- 76.1 m2
-
Taras: 6 m2Ogród: 155 m2
- 2
- 0
- 753390 zł
- Wolne
- Zobacz
- Mieszkanie 76,10 m2 LM29a budynek A
- 76.1 m2
-
Taras: 9.5 m2Ogród: 129 m2
- 2
- 0
- 753390 zł
- Wolne
- Zobacz
- Mieszkanie 76,10 m2 LM30a budynek A
- 76.1 m2
-
Taras: 6 m2Ogród: 143 m2
- 2
- 753390 zł
- Wolne
- Zobacz
- Mieszkanie 76,10 m2 LM31a budynek A
- 76.1 m2
-
Taras: 9.5 m2Ogród: 119 m2
- 2
- 0
- 753390 zł
- Wolne
- Zobacz
- Mieszkanie 76,10 m2 LM68 a budynek D
- 76.1 m2
-
Taras: 9.5 m2Ogród: 360 m2
- 2
- 0
- 753390 zł
- Wolne
- Zobacz
- Mieszkanie 76,10 m2 LM69 a budynek A
- 76.1 m2
-
Taras: 6 m2Ogród: 187 m2
- 2
- 0
- 753390 zł
- Wolne
- Zobacz
- Mieszkanie 76,10 m2 LM70 a budynek A
- 76.1 m2
-
Taras: 9.5 m2Ogród: 207 m2
- 3
- 0
- 753390 zł
- Wolne
- Zobacz
- Mieszkanie 76,10 m2 LM70 a budynek A
- 76.1 m2
-
Taras: 9.5 m2Ogród: 207 m2
- 2
- 0
- 753390 zł
- Wolne
- Zobacz
- Mieszkanie 114,60 m2 LM1 b budynek C
- 114.6 m2
-
Balkon: 16 m2
- 2
- 758000 zł
- Wolne
- Zobacz
- Mieszkanie 114,60 m2 LM53 b budynek B
- 114.7 m2
-
Balkon: 16 m2
- 2
- 758000 zł
- Wolne
- Zobacz
- Mieszkanie 114,60 m2 LM54 b budynek B
- 114.7 m2
-
Balkon: 19.2 m2
- 2
- 768000 zł
- Wolne
- Zobacz
- Mieszkanie 114,60 m2 LM55 b budynek B
- 114.7 m2
-
Balkon: 16 m2
- 2
- 758000 zł
- Wolne
- Zobacz
- Mieszkanie 126,10 m2 LM28b budynek A
- 126.1 m2
-
Balkon: 20.9 m2Ogród: 226 m2
- 2
- 1071850 zł
- Wolne
- Zobacz
- Mieszkanie 126,10 m2 LM29b budynek A
- 126.1 m2
-
Balkon: 20.9 m2Ogród: 213 m2
- 2
- 1071850 zł
- Wolne
- Zobacz
- Mieszkanie 126,10 m2 LM30b budynek A
- 126.1 m2
-
Balkon: 20.9 m2Ogród: 237 m2
- 2
- 1071850 zł
- Wolne
- Zobacz
- Mieszkanie 126,10 m2 LM31b budynek A
- 126.1 m2
-
Balkon: 20.9 m2Ogród: 235 m2
- 2
- 1071850 zł
- Wolne
- Zobacz





