Dom (Bliźniak) – lokal 1, Mazowieckie Wierzby - Łomianki Dolne
-
Cena 749000 zł
-
Powierzchnia 123.42 m2
-
Typ nieruchomości
nowy dom
-
Liczba pokoi 5
-
Łazienki
3
-
Cena za m2 6069 zł
Opis nieruchomości
Do sprzedania łącznie 10 lokali: 5 pokojowe lokale dwupoziomowe w zabudowie bliźniaczej w nowej inwestycji w stanie deweloperskim. Planowane oddanie do użytkowania III kwartał 2023.
Lokal bardzo jasny, spokojna okolica w drugiej linii zabudowy. Do lokalu przynależy miejsce garażowe w cenie, ogródek (powierzchnie od 163 do 273m2). Wejście z parteru przez wiatrołap i klatkę schodową do wyłącznego użytkowania. Bardzo duże okna, pompa ciepła, dodatkowe miejsce postojowe naziemne.
W skład lokalu wchodzi:
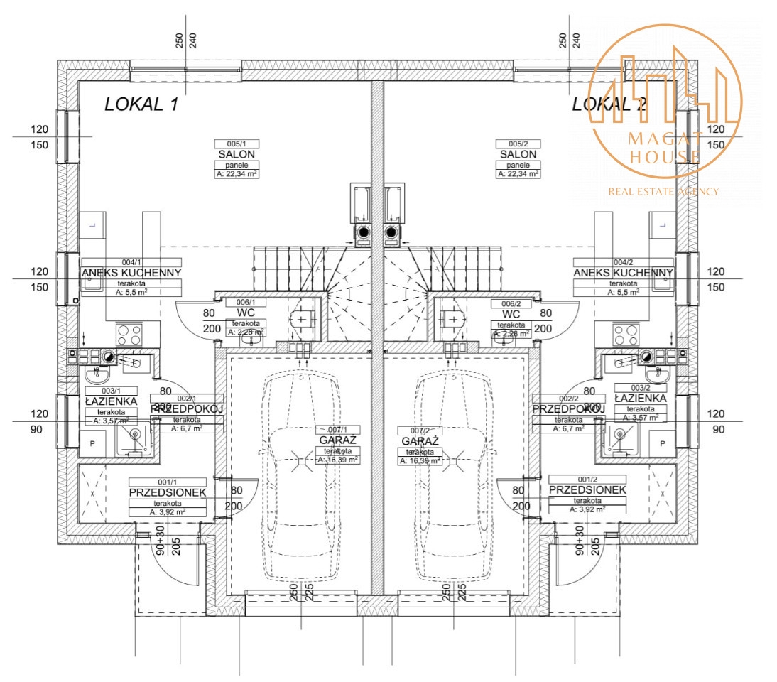
Parter (60,7m2):
- przestronny salon (22,34m2)
- jasna kuchnia otwarta na salon (5,5m2)
- łazienka z kotłownią (3,57m2)
- wc (2,28m2)
- przedpokój (6,7m2)
- przedsionek (3,92m2)
- garaż (16,39m2)
Piętro (62,72m2):
- sypialnia 1 (16,35m2)
- sypialnia 2 (12,75m2)
- sypialnia 3 (11,07m2)
- sypialnia 4 (10,02m2)
- łazienka (5,64m2)
- przedpokój (6,89m2)
- klatka schodowa (1,85m2)
- poddasze nieużytkowe
Lokalizacja:
- Ul. Łużycka 30 Łomianki Dolne
Okolica:
- tereny zielone, lasy i łąki
- zabudowa jednorodzinna zgodnie z MPZP
Media:
- woda i kanalizacja miejska
- prąd
- własne pompy ciepła
- światłowód
Inwestycja składa się z 10 lokali na sprzedaż, wszystkie o powierzchni 123,42m2 z ogródkami od 163 do 273m2 - sprawdź dostępność i ceny!
Zapraszam do obejrzenia! Kup bez prowizji!
Przedstawiona wyżej oferta nie jest ofertą handlową w rozumieniu przepisów prawa, lecz ma charakter informacyjny. Magat House dokłada starań, aby treści przedstawione w naszych ofertach były aktualne i rzetelne. Dane dotyczące ofert uzyskano na podstawie oświadczeń sprzedających.
Dane nieruchomości
- poddasze
- garaż
- dwupoziomowe



