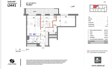
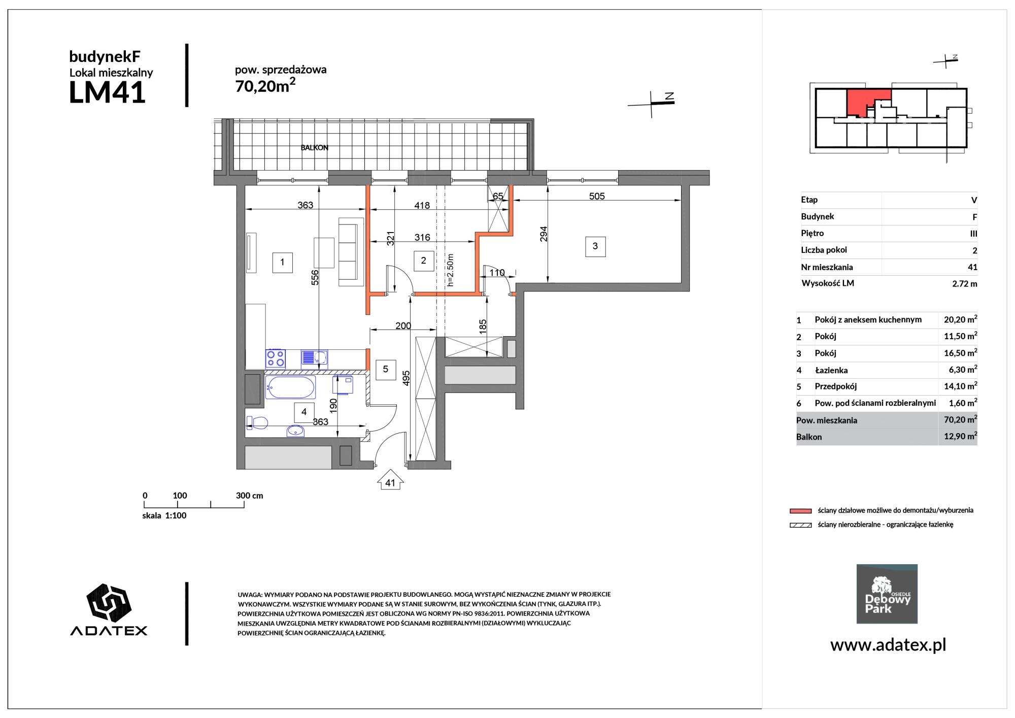
Mieszkanie 70,20 m2 LM F41 budynek F, Osiedle Dębowy Park Siemianowice Ślaskie - Siemianowice Śląskie
Id: 4387
-
Cena 547560 zł
-
Powierzchnia 70.2 m2
-
Typ nieruchomości
nowe mieszkanie
-
Liczba pokoi 3
-
Łazienki
1
-
Cena za m2 7800 zł
Opis nieruchomości
Oferujemy na sprzedaż nowe 3 pokojowe mieszkanie na 3 piętrze o powierzchni 70,20 m2 a w nim m.in.:
- salon z aneksem kuchennym
- łazienka
- 2 oddzielne pokoje
- przedpokój
- balkon o powierzchni 12,90 m2
Standard deweloperski, w cenie mieszkania, a w nim:
- przestronny, wykafelkowany balkon z punktem elektrycznym oraz światłem wykończone w najwyższym standardzie
- osiedle monitorowane
- ogrzewanie miejskie
- zagospodarowana przestrzeń wspólna
- kostka brukowa na chodnikach
- oświetlenie
- winda
- wszystkie instalacje rozprowadzone po mieszkaniu
- kaloryfery
- ciepła woda z sieci miejskiej
- drzwi antywłamaniowe z atestem
- tynk maszynowy zatarty na gładko na ścianach i sufitach
- domofon/wideofon
Dane nieruchomości
Powierzchnia:
70.2 m2
Cena:
547560 zł
Cena za m2
7800 zł
Dostępność
Wolne
Typ nieruchomości
nowe mieszkanie
Typ budynku
wielomieszkaniowa
Przeznaczenie
mieszkaniowy
Faza budowy
w budowie
Rok zakończenia budowy
2023
Planowany termin oddania do użytku
Zapytaj
Standard
deweloperski
Materiał
żelbet
Ogrzewanie
centralne miejskie
Kanalizacja
miejska
Kondygnacje
-
Piętro
3
Pokoje
3
Łazienki
1
Dodatkowy obszar
- balkon
- parking zewnętrzny
- miejsce postojowe w garażu
Udogodnienia
- wideo domofon
- winda
- monitoring
- siłownia
Funkcjonalności
- aneks kuchenny
Powierzchnia balkonów:
12.9 m2
Dane adresowe
Miejscowość:
Siemianowice Śląskie
Kod kraju:
PL
Kod pocztowy:
41-103
Województwo:
śląskie
Ulica:
Oświęcimska
Powiat:
Siemianowice Śląskie
Nr budynku:
7
Mapay ciepła inwestycji
Dzięki widokowi map ciepła możesz sprawdzić mocne i spłabe strony lokalizacji.
O inwestycji
Oferty nieruchomości
- Nazwa
- Powierzchnia użytkowa
- Dodatkowa powierzchnia
- Liczba pokoi
- Piętro
- Cena brutto
- Dostępność
- Mieszkanie 43,50 m2 LM F10 budynek F
- 43.5 m2
-
Taras: 20.52 m2
- 2
- 0
- 348000 zł
- Wolne
- Zobacz
- Mieszkanie 57,60 m2 LM E4 budynek E
- 57.6 m2
-
Taras: 36.16 m2
- 2
- 0
- 434880 zł
- Wolne
- Zobacz
- Mieszkanie 57,60 m2 LM E5 budynek E
- 57.6 m2
-
Taras: 36.16 m2
- 3
- 0
- 434880 zł
- Wolne
- Zobacz
- Mieszkanie 57,60 m2 LM E26 budynek E
- 57.6 m2
-
Balkon: 6.9 m2
- 3
- 2
- 429120 zł
- Wolne
- Zobacz
- Mieszkanie 57,60 m2 LM F4 budynek F
- 57.6 m2
-
Taras: 36.16 m2
- 3
- 0
- 460800 zł
- Wolne
- Zobacz
- Mieszkanie 57,60 m2 LM F5 budynek F
- 57.6 m2
-
Taras: 36.16 m2
- 3
- 0
- 460800 zł
- Wolne
- Zobacz
- Mieszkanie 57,60 m2 LM F15 budynek F
- 57.6 m2
-
Balkon: 12.3 m2
- 3
- 1
- 449280 zł
- Wolne
- Zobacz
- Mieszkanie 57,60 m2 LM F16 budynek F
- 57.6 m2
-
Balkon: 6.9 m2
- 3
- 1
- 449280 zł
- Wolne
- Zobacz
- Mieszkanie 57,60 m2 LM F26 budynek F
- 57.6 m2
-
Balkon: 6.9 m2
- 3
- 2
- 455040 zł
- Wolne
- Zobacz
- Mieszkanie 57,60 m2 LM F35 budynek F
- 57.6 m2
-
Balkon: 12.3 m2
- 3
- 3
- 463680 zł
- Wolne
- Zobacz
- Mieszkanie 57,60 m2 LM F45 budynek F
- 57.6 m2
-
Balkon: 12.3 m2
- 3
- 4
- 466560 zł
- Wolne
- Zobacz
- Mieszkanie 57,60 m2 LM F46 budynek F
- 57.6 m2
-
Balkon: 6.9 m2
- 3
- 4
- 466560 zł
- Wolne
- Zobacz
- Mieszkanie 61,40 m2 LM 18D budynek D
- 61.4 m2
-
Balkon: 27 m2
- 3
- 3
- 509620 zł
- Wolne
- Zobacz
- Mieszkanie 66,70 m2 LM F8 budynek F
- 66.7 m2
-
Taras: 91 m2
- 3
- 0
- 526930 zł
- Wolne
- Zobacz
- Mieszkanie 70,20 m2 LM E21 budynek E
- 70.2 m2
-
Balkon: 7.7 m2
- 3
- 1
- 508950 zł
- Wolne
- Zobacz
- Mieszkanie 70,20 m2 LM E31 budynek E
- 70.2 m2
-
Balkon: 7.7 m2
- 3
- 2
- 722990 zł
- Wolne
- Zobacz
- Mieszkanie 70,20 m2 LM E41 budynek E
- 70.2 m2
-
Balkon: 7.7 m2
- 3
- 3
- 512460 zł
- Wolne
- Zobacz
- Mieszkanie 70,20 m2 LM E51 budynek E
- 70.2 m2
-
Balkon: 7.7 m2
- 3
- 4
- 519480 zł
- Wolne
- Zobacz
- Mieszkanie 70,20 m2 LM F21 budynek F
- 70.2 m2
-
Balkon: 7.7 m2
- 3
- 1
- 540540 zł
- Wolne
- Zobacz
- Mieszkanie 70,20 m2 LM F31 budynek F
- 70.2 m2
-
Balkon: 7.7 m2
- 3
- 2
- 547560 zł
- Wolne
- Zobacz
- Mieszkanie 70,20 m2 LM F36 budynek F
- 57.6 m2
-
Balkon: 6.9 m2
- 3
- 3
- 463680 zł
- Wolne
- Zobacz
- Mieszkanie 70,20 m2 LM F41 budynek F
- 70.2 m2
-
Balkon: 12.9 m2
- 3
- 3
- 547560 zł
- Wolne
- Zobacz
- Mieszkanie 70,20 m2 LM F51 budynek F
- 70.2 m2
-
Balkon: 12.9 m2
- 3
- 4
- 554580 zł
- Wolne
- Zobacz
- Mieszkanie 70,60 m2 LM E9 budynek E
- 70.6 m2
-
Taras: 88 m2
- 3
- 0
- 525970 zł
- Wolne
- Zobacz
- Mieszkanie 70,60 m2 LM F9 budynek F
- 70.6 m2
-
Taras: 88 m2
- 3
- 0
- 557740 zł
- Wolne
- Zobacz
- Mieszkanie 70,60 m2 LM F20 budynek F
- 70.6 m2
-
Balkon: 27.9 m2
- 3
- 1
- 543620 zł
- Wolne
- Zobacz
- Mieszkanie 72,10 m2 LM E1 budynek E
- 72.1 m2
-
Taras: 36.56 m2
- 3
- 0
- 544355 zł
- Wolne
- Zobacz
- Mieszkanie 72,10 m2 LM F1 budynek F
- 72.1 m2
-
Taras: 36.56 m2
- 3
- 0
- 576800 zł
- Wolne
- Zobacz
- Mieszkanie 74,40 m2 LM E12 budynek E
- 74.4 m2
-
Balkon: 11.8 m2
- 4
- 1
- 539400 zł
- Wolne
- Zobacz
- Mieszkanie 74,40 m2 LM F12 budynek F
- 74.4 m2
-
Balkon: 11.8 m2
- 3
- 1
- 572880 zł
- Wolne
- Zobacz
- Mieszkanie 74,40 m2 LM F33 budynek F
- 74.4 m2
-
Balkon: 11.8 m2
- 4
- 3
- 580320 zł
- Wolne
- Zobacz
- Mieszkanie 74,40 m2 LM F43 budynek F
- 74.4 m2
-
Balkon: 11.8 m2
- 4
- 4
- 587760 zł
- Wolne
- Zobacz
- Mieszkanie 77,20 m2 LM E11 budynek E
- 77.2 m2
-
Balkon: 14.2 m2
- 3
- 1
- 559700 zł
- Wolne
- Zobacz
- Mieszkanie 77,20 m2 LM E22 budynek E
- 77.2 m2
-
Balkon: 14.2 m2
- 3
- 2
- 567420 zł
- Wolne
- Zobacz
- Mieszkanie 77,20 m2 LM F11 budynek F
- 77.2 m2
-
Balkon: 14.2 m2
- 3
- 1
- 594440 zł
- Wolne
- Zobacz
- Mieszkanie 77,20 m2 LM F22 budynek F
- 77.2 m2
-
Balkon: 14.2 m2
- 3
- 2
- 594440 zł
- Wolne
- Zobacz
- Mieszkanie 77,20 m2 LM F32 budynek F
- 77.2 m2
-
Balkon: 14.2 m2
- 3
- 3
- 602160 zł
- Wolne
- Zobacz
- Mieszkanie 77,20 m2 LM F42 budynek F
- 77.2 m2
-
Balkon: 14.2 m2
- 3
- 4
- 609880 zł
- Wolne
- Zobacz








