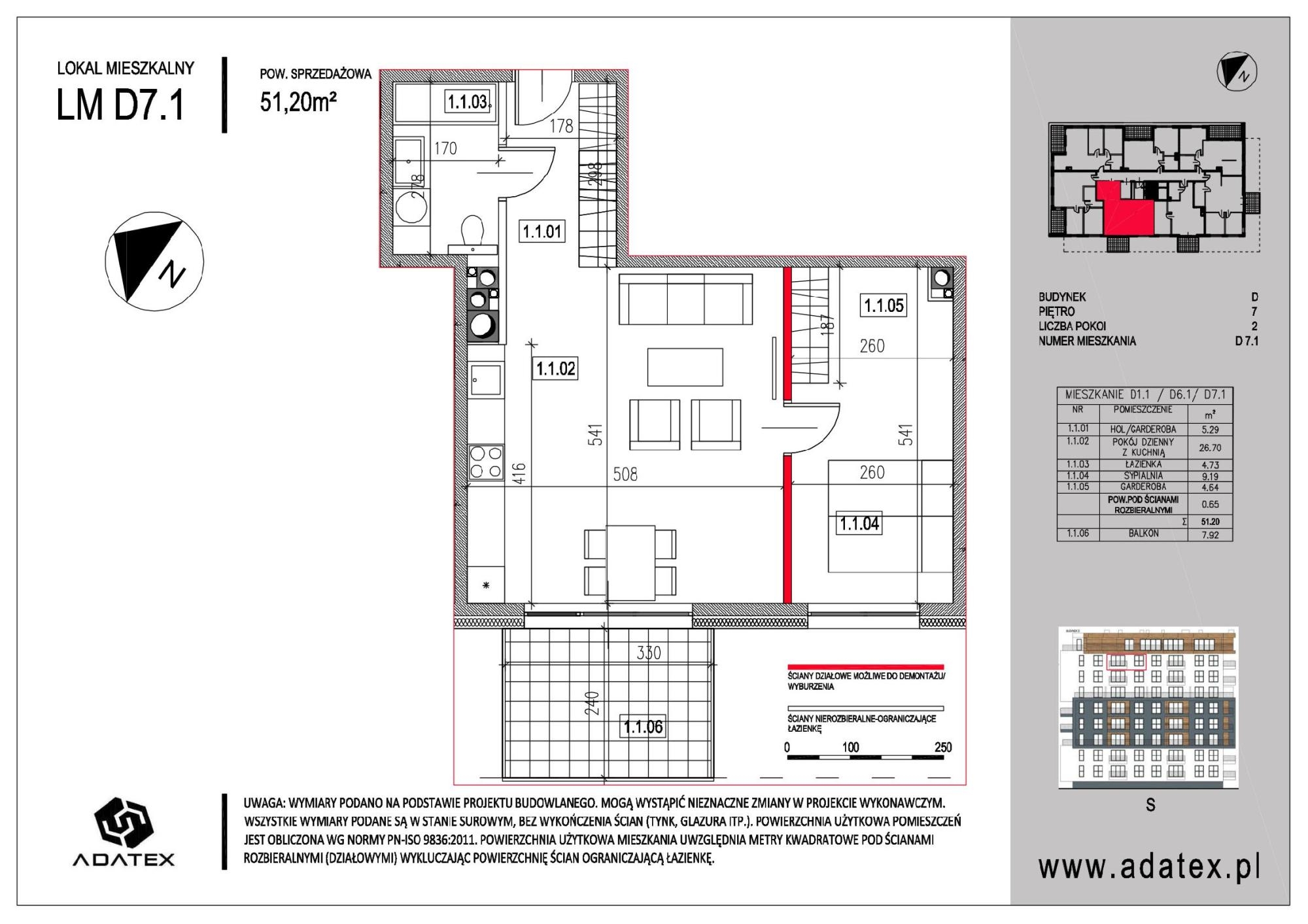
Mieszkanie 51,20 m2 LM D7.1 budynek D, Osiedle Nowa Dąbrowa Dąbrowa Górnicza - Dąbrowa Górnicza
Id: 4553
-
Cena 430080 zł
-
Powierzchnia 51.2 m2
-
Typ nieruchomości
nowe mieszkanie
-
Liczba pokoi 2
-
Łazienki
1
-
Cena za m2 8400 zł
Opis nieruchomości
Oferujemy na sprzedaż nowe 2 pokojowe mieszkanie, na 7 piętrze o powierzchni 51,64 m2 a w nim m.in.:
- salon z aneksem kuchennym
- łazienka
- 1 oddzielny pokój
- przedpokój
- balkon 7,92 m2
Standard deweloperski, w cenie mieszkania, a w nim:
- tynk maszynowy zatarty na gładko na ścianach i sufitach
- wylewki przygotowane pod panele, bądź płytki
- wszystkie instalacje rozprowadzone po mieszkaniu
- kaloryfery
- ciepła woda z sieci miejskiej
- domofon lub wideofon
- drzwi antywłamaniowe z atestem
- balkony / tarasy wykończone, z punktem elektrycznym oraz światłem.
Dane nieruchomości
Powierzchnia:
51.2 m2
Cena:
430080 zł
Cena za m2
8400 zł
Dostępność
Wolne
Typ nieruchomości
nowe mieszkanie
Typ budynku
wielomieszkaniowa
Przeznaczenie
mieszkaniowy
Faza budowy
w budowie
Rok zakończenia budowy
-
Planowany termin oddania do użytku
Zapytaj
Standard
deweloperski
Materiał
żelbet
Ogrzewanie
centralne miejskie
Kanalizacja
miejska
Kondygnacje
-
Piętro
7
Pokoje
2
Łazienki
1
Dodatkowy obszar
- balkon
- parking zewnętrzny
- miejsce postojowe w garażu
- komórka lokatorska
Udogodnienia
- wideo domofon
- winda
- monitoring
Funkcjonalności
- aneks kuchenny
- funkcjonalny układ pomieszczeń
- podjazd dla niepełnosprawnych
Powierzchnia balkonów:
7.92 m2
Dane adresowe
Miejscowość:
Dąbrowa Górnicza
Kod kraju:
Po
Kod pocztowy:
41-300
Województwo:
śląskie
Ulica:
Graniczna
Powiat:
Dąbrowa Górnicza
Mapay ciepła inwestycji
Dzięki widokowi map ciepła możesz sprawdzić mocne i spłabe strony lokalizacji.
O inwestycji
Oferty nieruchomości
- Nazwa
- Powierzchnia użytkowa
- Dodatkowa powierzchnia
- Liczba pokoi
- Piętro
- Cena brutto
- Dostępność
- Mieszkanie 48,14 m2 LM C6.4 budynek C
- 48.14 m2
-
Loggia: 8.5 m2
- 2
- 6
- 409190 zł
- Wolne
- Zobacz
- Mieszkanie 48,16 m2 LM D1.4 budynek D
- 48.16 m2
-
Loggia: 8.5 m2
- 2
- 1
- 385280 zł
- Wolne
- Zobacz
- Mieszkanie 48,16 m2 LM D5.4 budynek D
- 48.16 m2
-
Loggia: 8.5 m2
- 2
- 5
- 404544 zł
- Wolne
- Zobacz
- Mieszkanie 48,16 m2 LM D5.4 budynek D
- 48.16 m2
-
Loggia: 8.5 m2
- 2
- 5
- 404544 zł
- Wolne
- Zobacz
- Mieszkanie 48,16 m2 LM D6.4 budynek D
- 48.16 m2
-
Loggia: 8.5 m2
- 2
- 6
- 409360 zł
- Wolne
- Zobacz
- Mieszkanie 48,16 m2 LM D7.4 budynek D
- 48.16 m2
-
Loggia: 8.5 m2
- 2
- 7
- Wolne
- Zobacz
- Mieszkanie 51,18 m2 LM C0.1 budynek C
- 51.18 m2
-
Balkon: 7.92 m2
- 2
- 0
- 378732 zł
- Wolne
- Zobacz
- Mieszkanie 51,18 m2 LM C7.1 budynek C
- 51.18 m2
-
Balkon: 7.92 m2
- 2
- 7
- 419676 zł
- Wolne
- Zobacz
- Mieszkanie 51,20 m2 LM D0.1 budynek D
- 51.2 m2
-
Balkon: 7.92 m2
- 2
- 0
- 389120 zł
- Wolne
- Zobacz
- Mieszkanie 51,20 m2 LM D1.1 budynek D
- 51.2 m2
-
Balkon: 7.92 m2
- 2
- 1
- 404480 zł
- Wolne
- Zobacz
- Mieszkanie 51,20 m2 LM D6.1 budynek D
- 51.2 m2
-
Balkon: 7.92 m2
- 2
- 6
- 435200 zł
- Wolne
- Zobacz
- Mieszkanie 51,20 m2 LM D7.1 budynek D
- 51.2 m2
-
Balkon: 7.92 m2
- 2
- 7
- 430080 zł
- Wolne
- Zobacz
- Mieszkanie 51,48 m2 LM D0.7 budynek D
- 51.48 m2
-
Balkon: 7.92 m2
- 391248 zł
- Wolne
- Zobacz
- Mieszkanie 51,52 m2 LM D5.7 budynek D
- 51.52 m2
-
Taras: 16.2 m2
- 2
- 5
- 432768 zł
- Wolne
- Zobacz
- Mieszkanie 51,53 m2 LM D6.7 budynek D
- 51.53 m2
-
Balkon: 7.92 m2
- 2
- 6
- 438005 zł
- Wolne
- Zobacz
- Mieszkanie 51,64 m2 LM D1.7 budynek D
- 51.64 m2
-
Balkon: 7.92 m2
- 2
- 1
- 402792 zł
- Wolne
- Zobacz
- Mieszkanie 51,64 m2 LM D7.7 budynek D
- 51.64 m2
-
Balkon: 7.92 m2
- 2
- 7
- 433776 zł
- Wolne
- Zobacz
- Mieszkanie 53,37 m2 LM D0.5 budynek D
- 53.37 m2
-
Loggia: 10.4 m2
- 2
- 0
- 421623 zł
- Wolne
- Zobacz
- Mieszkanie 53,41 m2 LM C0.5 budynek C
- 53.41 m2
-
Loggia: 10.4 m2
- 2
- 0
- 395234 zł
- Wolne
- Zobacz
- Mieszkanie 54,52 m2 LM C3.4 budynek C
- 54.52 m2
-
Loggia: 9.21 m2
- 2
- 3
- 419804 zł
- Wolne
- Zobacz
- Mieszkanie 57,15 m2 LM D3.4 budynek D
- 57.15 m2
-
Loggia: 9.2 m2
- 2
- 3
- 468630 zł
- Wolne
- Zobacz
- Mieszkanie 57,97 m2 LM C3.1 budynek C
- 57.97 m2
-
Taras: 40 m2
- 3
- 3
- 446369 zł
- Wolne
- Zobacz
- Mieszkanie 57,97 m2 LM C4.1 budynek C
- 57.97 m2
-
Balkon: 7.92 m2
- 3
- 4
- 440572 zł
- Wolne
- Zobacz
- Mieszkanie 57,97 m2 LM C5.1 budynek C
- 57.97 m2
-
Balkon: 7.92 m2
- 2
- 5
- 452166 zł
- Wolne
- Zobacz
- Mieszkanie 57,98 m2 LM D3.1 budynek D
- 57.98 m2
-
Balkon: 7.68 m2
- 3
- 3
- 469638 zł
- Wolne
- Zobacz
- Mieszkanie 57,98 m2 LM D4.1 budynek D
- 57.98 m2
-
Balkon: 7.68 m2
- 3
- 4
- 469638 zł
- Wolne
- Zobacz
- Mieszkanie 57,99 m2 LM D2.1 budynek D
- 57.99 m2
-
Taras: 40 m2
- 3
- 2
- 458121 zł
- Wolne
- Zobacz
- Mieszkanie 58,23 m2 LM C7.5 budynek C
- 58.23 m2
-
Loggia: 10.4 m2
- 2
- 7
- 465840 zł
- Wolne
- Zobacz
- Mieszkanie 58,26 m2 LM D1.5 budynek D
- 58.26 m2
-
Loggia: 10.4 m2
- 2
- 1
- 466080 zł
- Wolne
- Zobacz
- Mieszkanie 58,26 m2 LM D6.5 budynek D
- 58.26 m2
-
Loggia: 10.4 m2
- 2
- 6
- 489384 zł
- Wolne
- Zobacz
- Mieszkanie 58,26 m2 LM D7.5 budynek D
- 58.26 m2
-
Loggia: 10.4 m2
- 2
- 7
- 501036 zł
- Wolne
- Zobacz
- Mieszkanie 60,10 m2 LM D3.2 budynek D
- 60.1 m2
-
Balkon: 10.54 m2
- 3
- 3
- 486810 zł
- Wolne
- Zobacz
- Mieszkanie 60,10 m2 LM D4.2 budynek D
- 60.1 m2
-
Balkon: 10.54 m2
- 3
- 4
- 492820 zł
- Wolne
- Zobacz
- Mieszkanie 63,61 m2 LM D3.6 budynek D
- 63.61 m2
-
Loggia: 8.76 m2
- 3
- 3
- 496158 zł
- Wolne
- Zobacz
- Mieszkanie 63,61 m2 LM D4.6 budynek D
- 63.61 m2
-
Loggia: 8.76 m2
- 3
- 4
- 508880 zł
- Wolne
- Zobacz
- Mieszkanie 63,81 m2 LM D0.6 budynek D
- 63.81 m2
-
Balkon: 7.92 m2
- 3
- 0
- 491337 zł
- Wolne
- Zobacz
- Mieszkanie 63,83 m2 LM C0.6 budynek C
- 63.83 m2
-
Balkon: 7.92 m2
- 3
- 0
- 465959 zł
- Wolne
- Zobacz
- Mieszkanie 63,87 m2 LM D1.6 budynek D
- 63.87 m2
-
Balkon: 7.92 m2
- 3
- 1
- 491799 zł
- Wolne
- Zobacz
- Mieszkanie 63,87 m2 LM D6.6 budynek D
- 63.87 m2
-
Balkon: 7.92 m2
- 3
- 6
- 536508 zł
- Wolne
- Zobacz
- Mieszkanie 64,66 m2 LM C0.2 budynek C
- 64.66 m2
-
Loggia: 7.4 m2
- 3
- 0
- 484950 zł
- Wolne
- Zobacz
- Mieszkanie 64,71 m2 LM D0.2 budynek D
- 64.71 m2
-
Loggia: 7.48 m2
- 3
- 0
- 498267 zł
- Wolne
- Zobacz
- Mieszkanie 64,71 m2 LM D1.2 budynek D
- 64.71 m2
-
Loggia: 7.4 m2
- 3
- 1
- 511209 zł
- Wolne
- Zobacz
- Mieszkanie 64,71 m2 LM D6.2 budynek D
- 64.71 m2
-
Loggia: 7.4 m2
- 3
- 6
- 517680 zł
- Wolne
- Zobacz
- Mieszkanie 64,71 m2 LM D7.2 budynek D
- 64.71 m2
-
Loggia: 7.4 m2
- 3
- 7
- 550035 zł
- Wolne
- Zobacz
- Mieszkanie 64,86 m2 LM C2.3 budynek C
- 64.86 m2
-
Loggia: 8.66 m2
- 3
- 2
- 492936 zł
- Wolne
- Zobacz
- Mieszkanie 64,86 m2 LM C7.3 budynek C
- 64.86 m2
-
Loggia: 8.66 m2
- 3
- 7
- 538338 zł
- Wolne
- Zobacz
- Mieszkanie 64,86 m2 LM D0.3 budynek D
- 64.86 m2
-
Loggia: 8.66 m2
- 3
- 0
- 499422 zł
- Wolne
- Zobacz
- Mieszkanie 64,87 m2 LM D1.3 budynek D
- 64.87 m2
-
Loggia: 8.66 m2
- 3
- 1
- 499499 zł
- Wolne
- Zobacz
- Mieszkanie 64,87 m2 LM D5.3 budynek D
- 64.87 m2
-
Loggia: 8.66 m2
- 3
- 5
- 544908 zł
- Wolne
- Zobacz
- Mieszkanie 64,87 m2 LM D6.3 budynek D
- 64.87 m2
-
Loggia: 8.66 m2
- 3
- 6
- 531934 zł
- Wolne
- Zobacz
- Mieszkanie 64,87 m2 LM D7.3 budynek D
- 64.87 m2
-
Loggia: 8.66 m2
- 3
- 7
- 538421 zł
- Wolne
- Zobacz
- Mieszkanie 69,25 m2 LM D2.6 budynek D
- 69.25 m2
-
Taras: 20.16 m2
- 4
- 2
- 540150 zł
- Wolne
- Zobacz
- Mieszkanie 69,65 m2 LM D3.5 budynek D
- 69.65 m2
-
Loggia: 8.5 m2
- 3
- 3
- 564165 zł
- Wolne
- Zobacz
- Mieszkanie 69,69 m2 LM D2.5 budynek D
- 69.69 m2
-
Loggia: 8.5 m2
- 3
- 2
- 564489 zł
- Wolne
- Zobacz
- Mieszkanie 69,85 m2 LM D5.5 budynek D
- 69.85 m2
-
Taras: 11.17 m2
- 3
- 5
- 565785 zł
- Wolne
- Zobacz
- Mieszkanie 71,50 m2 LM B23 budynek B
- 71.5 m2
-
Balkon: 7.92 m2
- 3
- 3
- 699500 zł
- Wolne
- Zobacz
- Mieszkanie 106,93 m2 LM C8.1 budynek C
- 106.93 m2
-
Taras: 44.79 m2
- 4
- 8
- 1272467 zł
- Wolne
- Zobacz
- Mieszkanie 106,94 m2 LM D8.1 budynek D
- 106.94 m2
-
Taras: 44.79 m2
- 4
- 8
- 1379526 zł
- Wolne
- Zobacz
- Mieszkanie 121,47 m2 LM C8.3 budynek
- 121.47 m2
-
Taras: 70.61 m2
- 4
- 8
- 1311876 zł
- Wolne
- Zobacz
- Mieszkanie 121,49 m2 LM D8.3 budynek D
- 121.49 m2
-
Taras: 70.61 m2
- 4
- 8
- 1445731 zł
- Wolne
- Zobacz
- Mieszkanie 143,87 m2 LM C8.2 budynek C
- 143.87 m2
-
Taras: 67.84 m2
- 4
- 8
- 1539409 zł
- Wolne
- Zobacz
- Mieszkanie 143,89 m2 LM D8.2 budynek D
- 143.89 m2
-
Taras: 67.84 m2
- 4
- 8
- 1712291 zł
- Wolne
- Zobacz

