Orologio D, M30, Apartamenty Orologio - Błonie
Id: 461
-
Cena 536988 zł
-
Powierzchnia 73.56 m2
-
Typ nieruchomości
nowe mieszkanie
-
Liczba pokoi 4
-
Łazienki
1
-
Cena za m2 7300 zł
Opis nieruchomości
Nowoczesne i funkcjonalne Apartamenty Orologio to Inwestycja mieszkaniowa realizowana przez VFM Real Estate w podwarszawskim Błoniu. Położona zaledwie 30 minut od Warszawy, dzięki czemu stanowi doskonałą lokalizację dla osób pracujących w stolicy.
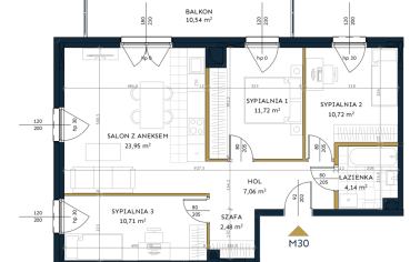
Metraż: 73,56 m²
W skład lokalu wchodzi:
- Hol (7,06 m²)
- Salon z aneksem (23,95 m²)
- Sypialnia (11,72 m²)
- Sypialnia (10,72 m²)
- Sypialnia (10,71 m²)
- Łazienka (4,14 m²)
- Balkon (10,54 m²)
- Szafa (2,48 m²)
Lokalizacja:
- ul. Wiejska, 05-870 Błonie
Okolica:
- tereny zielone, lasy i łąki
Apartamenty Orologio to osiedle mieszkaniowe złożone z czterech budynków o łącznej liczbie 250 mieszkań.
Na przyszłych mieszkańców czekają lokale 1, 2, 3 i 4-pokojowe o powierzchni od 27 m² do 81 m².
Dane nieruchomości
Powierzchnia:
73.56 m2
Cena:
536988 zł
Cena za m2
7300 zł
Dostępność
Sprzedane
Typ nieruchomości
nowe mieszkanie
Typ budynku
wielomieszkaniowa
Przeznaczenie
mieszkaniowy
Faza budowy
w budowie
Rok zakończenia budowy
2023
Planowany termin oddania do użytku
Zapytaj
Standard
deweloperski
Materiał
-
Ogrzewanie
-
Kanalizacja
-
Kondygnacje
-
Piętro
3
Pokoje
4
Łazienki
1
Dodatkowy obszar
- balkon
- miejsce postojowe w garażu
Udogodnienia
- wideo domofon
- winda
- monitoring
Funkcjonalności
-
-
Dane adresowe
Miejscowość:
Błonie
Kod kraju:
PL
Kod pocztowy:
05-870
Województwo:
Mazowieckie
Ulica:
Wiejska
Powiat:
Warszawski zachodni
Nr budynku:
4
Mapay ciepła inwestycji
Dzięki widokowi map ciepła możesz sprawdzić mocne i spłabe strony lokalizacji.
O inwestycji
Oferty nieruchomości
- Nazwa
- Powierzchnia użytkowa
- Dodatkowa powierzchnia
- Liczba pokoi
- Piętro
- Cena brutto
- Dostępność
- Orologio C, M5
- 64.18 m2
- 3
- 0
- 500604 zł
- Wolne
- Zobacz
- Orologio C, M6
- 64.17 m2
- 3
- 1
- 506943 zł
- Wolne
- Zobacz
- Orologio C, M27
- 77.78 m2
- 4
- 4
- 684464 zł
- Wolne
- Zobacz
- Orologio C, M33
- 66.02 m2
- 3
- 1
- 481946 zł
- Zarezerwowane
- Zobacz
- Orologio C, M38
- 63.2 m2
- 3
- 1
- 499280 zł
- Wolne
- Zobacz
- Orologio C, M39
- 35.19 m2
- 2
- 1
- 309672 zł
- Sprzedane
- Zobacz
- Orologio C, M40
- 66.02 m2
- 3
- 2
- 514956 zł
- Wolne
- Zobacz
- Orologio C, M47
- 66.37 m2
- 3
- 3
- 517686 zł
- Wolne
- Zobacz
- Orologio C, M54
- 60.19 m2
- 3
- 4
- 529672 zł
- Wolne
- Zobacz
- Orologio C, M55
- 62.62 m2
- 3
- 4
- 551056 zł
- Wolne
- Zobacz
- Orologio C, M58
- 63.2 m2
- 3
- 4
- 499280 zł
- Wolne
- Zobacz
- Orologio D, M2
- 70.21 m2
- 3
- 0
- 554659 zł
- Wolne
- Zobacz
- Orologio D, M3
- 73.56 m2
- 4
- 0
- 581124 zł
- Wolne
- Zobacz
- Orologio D, M7
- 73.75 m2
- 3
- 0
- 582625 zł
- Wolne
- Zobacz
- Orologio D, M9
- 45.93 m2
- 2
- 0
- 388108 zł
- Wolne
- Zobacz
- Orologio D, M10
- 62.74 m2
- 3
- 1
- 501920 zł
- Wolne
- Zobacz
- Orologio D, M11
- 70.93 m2
- 3
- 1
- 517789 zł
- Sprzedane
- Zobacz
- Orologio D, M12
- 73.56 m2
- 4
- 1
- 536988 zł
- Sprzedane
- Zobacz
- Orologio D, M16
- 73.75 m2
- 3
- 1
- 582625 zł
- Wolne
- Zobacz
- Orologio D, M19
- 62.74 m2
- 3
- 2
- 501920 zł
- Wolne
- Zobacz
- Orologio D, M20
- 70.93 m2
- 3
- 2
- 553254 zł
- Wolne
- Zobacz
- Orologio D, M21
- 73.56 m2
- 4
- 2
- 573768 zł
- Wolne
- Zobacz
- Orologio D, M30
- 73.56 m2
- 4
- 3
- 536988 zł
- Sprzedane
- Zobacz
- Orologio D, M34
- 73.75 m2
- 3
- 3
- 523625 zł
- Sprzedane
- Zobacz
- Orologio D, M37
- 78.33 m2
- 4
- 4
- 673638 zł
- Wolne
- Zobacz
- Orologio D, M38
- 81.12 m2
- 4
- 4
- 697632 zł
- Wolne
- Zobacz
