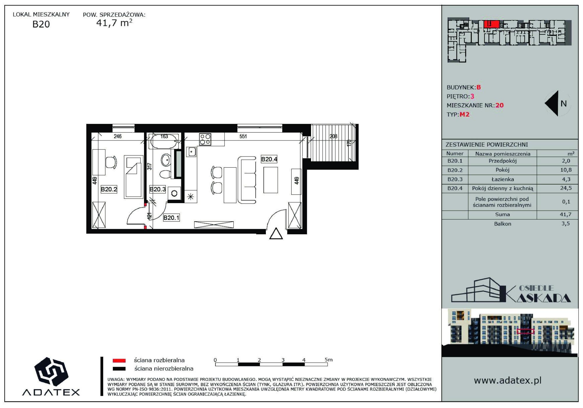
Mieszkanie 41,70 m2 LM B20 budynek B, Osiedle Kaskada Zabrze - Zabrze
Id: 4612
-
Cena 319005 zł
-
Powierzchnia 41.7 m2
-
Typ nieruchomości
nowe mieszkanie
-
Liczba pokoi 2
-
Łazienki
1
-
Cena za m2 7650 zł
Opis nieruchomości
Oferujemy na sprzedaż nowe 2 pokojowe mieszkanie na 3 piętrze o powierzchni 41,70 m2 a w nim m.in.:
- salon z aneksem kuchennym
- 1 oddzielny pokój
- przedpokój
- łazienka
- balkon 3,50 m2.
Standard deweloperski, w cenie mieszkania, a w nim:
- tynk maszynowy zatarty na gładko na ścianach i sufitach
- wylewki przygotowane pod panele, bądź płytki
- wszystkie instalacje rozprowadzone po mieszkaniu
- kaloryfery
- ciepła woda z sieci miejskiej
- domofon lub wideofon
- drzwi antywłamaniowe z atestem
- ogródki / balkony / tarasy wykończone, z punktem elektrycznym oraz światłem.
Dane nieruchomości
Powierzchnia:
41.7 m2
Cena:
319005 zł
Cena za m2
7650 zł
Dostępność
Wolne
Typ nieruchomości
nowe mieszkanie
Typ budynku
wielomieszkaniowa
Przeznaczenie
mieszkaniowy
Faza budowy
w budowie
Rok zakończenia budowy
-
Planowany termin oddania do użytku
Zapytaj
Standard
deweloperski
Materiał
żelbet
Ogrzewanie
centralne miejskie
Kanalizacja
miejska
Kondygnacje
-
Piętro
3
Pokoje
2
Łazienki
1
Dodatkowy obszar
- balkon
- parking zewnętrzny
- miejsce postojowe w garażu
Udogodnienia
- wideo domofon
- winda
- monitoring
Funkcjonalności
- aneks kuchenny
- regularny układ
- funkcjonalny układ pomieszczeń
- podjazd dla niepełnosprawnych
Powierzchnia balkonów:
3.5 m2
Dane adresowe
Miejscowość:
Zabrze
Kod kraju:
PL
Kod pocztowy:
41-800
Województwo:
śląskie
Ulica:
Aleja Korfantego
Powiat:
Zabrze
Mapay ciepła inwestycji
Dzięki widokowi map ciepła możesz sprawdzić mocne i spłabe strony lokalizacji.
O inwestycji
Oferty nieruchomości
- Nazwa
- Powierzchnia użytkowa
- Dodatkowa powierzchnia
- Liczba pokoi
- Piętro
- Cena brutto
- Dostępność
- 52,40
- 41.8 m2
-
Balkon: 5.4 m2
- 2
- 2
- 319770 zł
- Wolne
- Zobacz
- Mieszkanie 36,20 m2 LM B13 budynek B
- 36.2 m2
-
Balkon: 5.8 m2
- 1
- 1
- 280550 zł
- Wolne
- Zobacz
- Mieszkanie 36,20 m2 LM B13 budynek B
- 36.2 m2
-
Balkon: 5.8 m2
- 1
- 1
- 280550 zł
- Wolne
- Zobacz
- Mieszkanie 36,30 m2 LM B19 budynek B
- 36.3 m2
-
Balkon: 5.7 m2
- 1
- 2
- 266805 zł
- Wolne
- Zobacz
- Mieszkanie 36,30 m2 LM B31 budynek B
- 36.3 m2
-
Balkon: 5.8 m2
- 1
- 4
- 295845 zł
- Wolne
- Zobacz
- Mieszkanie 36,40 m2 LM B25 budynek B
- 36.4 m2
-
Balkon: 5.7 m2
- 1
- 3
- 274065 zł
- Wolne
- Zobacz
- Mieszkanie 36,40 m2 LM B36 budynek B
- 36.4 m2
-
Balkon: 5.7 m2
- 1
- 5
- 296660 zł
- Wolne
- Zobacz
- Mieszkanie 36,60 m2 LM B1 budynek B
- 36.6 m2
-
Balkon: 5.9 m2
- 1
- 0
- 287310 zł
- Wolne
- Zobacz
- Mieszkanie 40,90 m2 LM B22 budynek B
- 40.9 m2
-
Balkon: 7.5 m2
- 2
- 3
- 310840 zł
- Wolne
- Zobacz
- Mieszkanie 40,90 m2 LM B28 budynek B
- 40.9 m2
-
Balkon: 9.6 m2
- 2
- 4
- 325155 zł
- Wolne
- Zobacz
- Mieszkanie 41,40 m2 LM B4 budynek B
- 41.4 m2
-
Balkon: 36.4 m2
- 2
- 0
- 312570 zł
- Wolne
- Zobacz
- Mieszkanie 41,70 m2 LM B20 budynek B
- 41.7 m2
-
Balkon: 3.5 m2
- 2
- 3
- 319005 zł
- Wolne
- Zobacz
- Mieszkanie 41,80 m2 LM C17 budynek C
- 41.8 m2
-
Balkon: 4.7 m2
- 2
- 2
- 319770 zł
- Wolne
- Zobacz
- Mieszkanie 41,80 m2 LM C21 budynek C
- 41.8 m2
-
Balkon: 4.8 m2
- 2
- 3
- 319770 zł
- Wolne
- Zobacz
- Mieszkanie 41,80 m2 LM C26 budynek C
- 41.8 m2
-
Balkon: 4.8 m2
- 2
- 4
- 311410 zł
- Wolne
- Zobacz
- Mieszkanie 42,00 m2 LM B2 budynek B
- 42 m2
-
Balkon: 3.5 m2
- 2
- 0
- 321300 zł
- Wolne
- Zobacz
- Mieszkanie 43,00 m2 LM B29 budynek B
- 43 m2
-
Balkon: 9 m2
- 2
- 4
- 341850 zł
- Wolne
- Zobacz
- Mieszkanie 47,90 m2 LM C10 budynek C
- 47.9 m2
-
Balkon: 8.8 m2
- 2
- 1
- 356855 zł
- Wolne
- Zobacz
- Mieszkanie 47,90 m2 LM C16 budynek C
- 47.9 m2
-
Balkon: 8.9 m2
- 2
- 2
- 361645 zł
- Wolne
- Zobacz
- Mieszkanie 48,00 m2 LM B17 budynek B
- 48 m2
-
Balkon: 3 m2
- 2
- 2
- 348000 zł
- Wolne
- Zobacz
- Mieszkanie 48,50 m2 LM B5 budynek B
- 48.5 m2
-
Balkon: 29.3 m2
- 2
- 0
- 366175 zł
- Wolne
- Zobacz
- Mieszkanie 48,50 m2 LM B10 budynek B
- 48.5 m2
-
Balkon: 3 m2
- 2
- 1
- 337075 zł
- Wolne
- Zobacz
- Mieszkanie 49,00 m2 LM A8 budynek A
- 49 m2
-
Balkon: 4.8 m2
- 2
- 1
- 350350 zł
- Wolne
- Zobacz
- Mieszkanie 49,10 m2 LM A18 budynek A
- 49.1 m2
-
Balkon: 4.9 m2
- 2
- 3
- 351065 zł
- Wolne
- Zobacz
- Mieszkanie 51,10 m2 LM C15 budynek C
- 51.1 m2
-
Balkon: 5.7 m2
- 385805 zł
- Wolne
- Zobacz
- Mieszkanie 51,20 m2 LM A7 budynek A
- 51.2 m2
-
Balkon: 3.6 m2
- 2
- 1
- 355840 zł
- Wolne
- Zobacz
- Mieszkanie 51,30 m2 LM A17 budynek A
- 51.3 m2
-
Balkon: 3.6 m2
- 2
- 3
- 361665 zł
- Wolne
- Zobacz
- Mieszkanie 51,30 m2 LM C9 budynek C
- 51.3 m2
-
Balkon: 5.7 m2
- 2
- 1
- 361665 zł
- Wolne
- Zobacz
- Mieszkanie 51,50 m2 LM A22 budynek A
- 51.5 m2
-
Balkon: 10.7 m2
- 2
- 4
- 357925 zł
- Wolne
- Zobacz
- Mieszkanie 51,70 m2 LM A2 budynek A
- 51.7 m2
-
Balkon: 22.6 m2
- 2
- 0
- 343805 zł
- Wolne
- Zobacz
- Mieszkanie 52,40 m2 LM C12 budynek C
- 52.4 m2
-
Balkon: 3 m2
- 2
- 2
- 390380 zł
- Wolne
- Zobacz
- Mieszkanie 52,60 m2 LM C18 budynek C
- 52.6 m2
-
Balkon: 3 m2
- 2
- 4
- 391870 zł
- Wolne
- Zobacz
- Mieszkanie 52,70 m2 LM C6 budynek C
- 52.7 m2
-
Balkon: 3 m2
- 2
- 1
- 376805 zł
- Wolne
- Zobacz
- Mieszkanie 53,60 m2 LM A11 budynek A
- 53.6 m2
-
Balkon: 6.07 m2
- 2
- 2
- 361800 zł
- Wolne
- Zobacz
- Mieszkanie 53,60 m2 LM A16 budynek A
- 53.6 m2
-
Balkon: 6.1 m2
- 2
- 3
- 377880 zł
- Wolne
- Zobacz
- Mieszkanie 53,80 m2 LM A1 budynek A
- 53.8 m2
-
Balkon: 9.6 m2
- 2
- 0
- 357770 zł
- Wolne
- Zobacz
- Mieszkanie 53,80 m2 LM A6 budynek A
- 53.8 m2
-
Balkon: 6.1 m2
- 2
- 1
- 368530 zł
- Wolne
- Zobacz
- Mieszkanie 54,30 m2 LM A29 budynek A
- 54.3 m2
-
Balkon: 4 m2
- 2
- 6
- 399105 zł
- Wolne
- Zobacz
- Mieszkanie 56,00 m2 LM B33 budynek B
- 56 m2
-
Balkon: 5 m2
- 2
- 5
- 411600 zł
- Wolne
- Zobacz
- Mieszkanie 60,20 m2 LM B27 budynek B
- 60.2 m2
-
Balkon: 9.4 m2
- 2
- 4
- 454510 zł
- Wolne
- Zobacz
- Mieszkanie 60,40 m2 LM A19 budynek A
- 60.4 m2
-
Balkon: 9.8 m2
- 3
- 3
- 437900 zł
- Wolne
- Zobacz
- Mieszkanie 60,70 m2 LM A4 budynek A
- 60.7 m2
-
Balkon: 29.3 m2
- 3
- 0
- 415795 zł
- Wolne
- Zobacz
- Mieszkanie 62,00 m2 LM A15 budynek A
- 62 m2
-
Balkon: 19.7 m2
- 3
- 3
- 443300 zł
- Wolne
- Zobacz
- Mieszkanie 65,50 m2 LM C19 budynek C
- 65.5 m2
-
Balkon: 12.4 m2
- 3
- 3
- 487975 zł
- Wolne
- Zobacz
- Mieszkanie 69,70 m2 LM A5 budynek A
- 69.7 m2
-
Balkon: 10.5 m2
- 3
- 1
- 477445 zł
- Wolne
- Zobacz
- Mieszkanie 69,90 m2 LM A10 budynek A
- 69.9 m2
-
Balkon: 10.5 m2
- 3
- 2
- 485805 zł
- Wolne
- Zobacz
- Mieszkanie 71,40 m2 LM B26 budynek B
- 71.4 m2
-
Balkon: 7.5 m2
- 3
- 4
- 517650 zł
- Wolne
- Zobacz
- Mieszkanie 71,40 m2 LM B32 budynek B
- 71.4 m2
-
Balkon: 40.2 m2
- 3
- 5
- 560490 zł
- Wolne
- Zobacz
- Mieszkanie 78,10 m2 LM A25 budynek A
- 78.1 m2
-
Balkon: 6.3 m2
- 3
- 5
- 542795 zł
- Wolne
- Zobacz
- Mieszkanie 78,40 m2 LM A27 budynek A
- 78.4 m2
-
Balkon: 10.5 m2
- 4
- 6
- 560560 zł
- Wolne
- Zobacz
- Mieszkanie 78,60 m2 LM A24 budynek A
- 78.6 m2
-
Balkon: 10.5 m2
- 3
- 5
- 546270 zł
- Wolne
- Zobacz
- Mieszkanie 78,70 m2 LM A20 budynek A
- 78.7 m2
-
Balkon: 10.5 m2
- 3
- 4
- 539095 zł
- Wolne
- Zobacz
- Mieszkanie 78,80 m2 LM C5 budynek C
- 78.8 m2
-
Balkon: 8.5 m2
- 3
- 0
- 531900 zł
- Wolne
- Zobacz
- Mieszkanie 84,50 m2 LM B15 budynek B
- 84.5 m2
-
Balkon: 5.3 m2
- 4
- 2
- 561925 zł
- Wolne
- Zobacz
- Mieszkanie 84,50 m2 LM B21 budynek B
- 84.5 m2
-
Balkon: 5.3 m2
- 3
- 3
- 595725 zł
- Wolne
- Zobacz
- Mieszkanie 84,90 m2 LM B8 budynek B
- 84.9 m2
-
Balkon: 5.4 m2
- 3
- 1
- 564585 zł
- Wolne
- Zobacz
- Mieszkanie 85,20 m2 LM B3 budynek B
- 85.2 m2
-
Balkon: 30.8 m2
- 3
- 0
- 609180 zł
- Wolne
- Zobacz
- Mieszkanie 87,70 m2 LM B24 budynek B
- 87.7 m2
-
Balkon: 7.8 m2
- 4
- 3
- 609515 zł
- Wolne
- Zobacz
- Mieszkanie 95,60 m2 LM C4 budynek C
- 95.6 m2
-
Balkon: 48.2 m2
- 4
- 0
- 645300 zł
- Wolne
- Zobacz
- Mieszkanie 115,60 m2 LM B35 budynek B
- 115.6 m2
-
Balkon: 48 m2
- 5
- 5
- 861220 zł
- Wolne
- Zobacz
