Budynek B, M19, 7. Dzielnica Głowackiego - Sochaczew
-
Cena 748020 zł
-
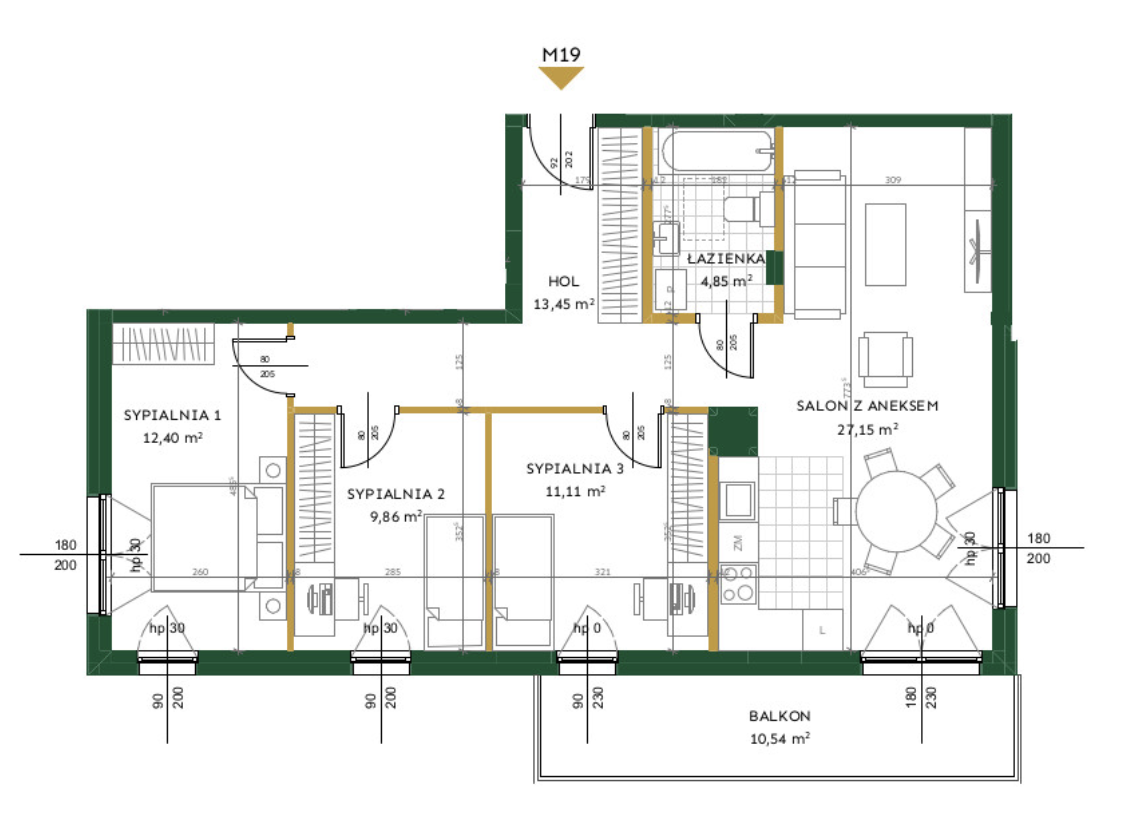
Powierzchnia 82.2 m2
-
Typ nieruchomości
nowe mieszkanie
-
Liczba pokoi 4
-
Łazienki
1
-
Cena za m2 9100 zł
Opis nieruchomości
Najnowsza Inwestycja deweloperska od VFM Real Estate, zlokalizowana w centrum miasta. Tuż obok Parku Garbolewskiego oraz przy ul. Olimpijskiej rozpoczyna się nowa historia Sochaczewa – 7. Dzielnica.
Projekt zakłada realizację dwóch osiedli mieszkaniowych zlokalizowanych przy ul. Głowackiego oraz ul. Olimpijskiej składających się odpowiednio z 9 budynków mieszkalnych, 2 zrewitalizowanych zabytkowych zabudowań z przeznaczeniem na usługi oraz 5 budynków mieszkalnych, jak również stworzenie stref rekreacyjnych dla mieszkańców. Planowany termin zakończenia budowy pierwszych dwóch budynków w ramach 7. Dzielnicy - Głowackiego to II kwartał 2023 roku.
W 7. Dzielnicy chce się mieszkać! Różnorodne metraże, funkcjonalne rozkłady i nowoczesna architektura skradną serce każdego mieszkańca Inwestycji.
7. Dzielnica to adres, pod który każdy chętnie będzie wracać! Przyszli mieszkańcy mogą wybrać swoje własne M spośród 89 mieszkań w I Etapie Inwestycji. W 7. Dzielnicy znajdą się mieszkania 1, 2, 3 i 4-pokojowe, o powierzchni od 29 do 82 m². Do każdego lokalu będzie przynależeć dodatkowo duży balkon lub przestronny ogródek.
Dane nieruchomości
- balkon
- wideo domofon
- winda
- monitoring
- teren ogrodzony
- pomieszczenie na rowery
-
-
