3A, Osiedle Marmurowa - Marki
-
Cena Zapytaj
-
Powierzchnia 118.09 m2
-
Typ nieruchomości
nowe mieszkanie
-
Liczba pokoi 4
-
Łazienki
2
Opis nieruchomości
Osiedle "Marmurowa" - inwestycja w Markach przy ulicy Marmurowej.
Jest to drugi etap inwestycji w skład której wchodzi osiem nowoczesnych segmentów z garażami w bryle budynku oraz płaskimi dachami. Zagospodarowanie terenu inwestycji zapewnia wygodę i bezpieczeństwo.
-
Brak skosów zapewnia możliwość pełnej aranżacji wszystkich pomieszczeń.
-
Inwestycja realizowana jest wśród zabudowy jednorodzinnej w cichej i spokojnej okolicy.
-
Dojazd do segmentów bezpośrednio z ulicy Marmurowej.
-
Wszystkie media miejskie.
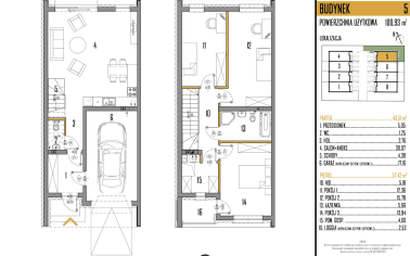
W skład każdego z segmentów wchodzi:
PARTER:
Przedsionek 5,05 m2
WC 1,25 m2
HOL 2,76 m2
SALON + ANEKS KUCHENNY 30,07 m2
SCHODY 4,38 m2
Garaż 17,16 m2
PIĘTRO:
Hol 5,18 m2
Pokój 1 12,36 m2
Pokój 2 15,78 m2
Pokój 3 13,84 m2
Łazienka 5,66 m2
Pomieszczenie gospodarcze 4,60 m2
RAZEM PROJEKTOWANA POWIERZCHNIA CAŁKOWITA 118,09 m2
Odległość od:
-
szkoła podstawowa 1 900 m
-
sklep spożywczy 1 700 m
-
przystanek komunikacji 1 700 m
-
poczta 2 500 m
-
przedszkole 2 700 m
-
apteka 1 900 m
Dane nieruchomości
- ogródek
- garaż
- aneks kuchenny
- dwupoziomowe
