19T-2, Osiedle Kadrowa - Warszawa
-
Cena Zapytaj
-
Powierzchnia 59.88 m2
-
Typ nieruchomości
nowe mieszkanie
-
Liczba pokoi 3
-
Łazienki
1
Opis nieruchomości
OSIEDLE „KADROWA 19”
Inwestycja Osiedle Kadrowa znajduje się na Starym Rembertowie, przy ul. Kadrowej 19, jest realizowana przez sprawdzonego dewelopera z wieloletnim doświadczeniem. Inwestycja obecnie jest w trakcie budowy z planowanym na 2 kw. 2023 roku terminem oddania do użytkowania.
Dzielnica Rembertów na wschodzie Warszawy należy do najmniej zaludnionych rejonów miasta. Na obszarze liczącym niespełna 20 km2 powierzchni zamieszkuje ok. 24 tys. osób, co wpływa na bezpieczeństwo lokalnej ludności. Przyczyną niewielkiej liczby mieszkańców jest niska – jednorodzinna i wielorodzinna zabudowa oraz znaczna ilość obszarów leśnych, które stanowią aż 30% terenu Rembertowa. Do najbardziej wartościowych kompleksów zieleni należy rezerwat przyrody Kawęczyn. Usytuowanie na obrzeżach miasta, zaciszna i spokojna okolica, walory przyrodnicze oraz wciąż powstająca niska zabudowa mieszkaniowa sprawiają, że dzielnica jest atrakcyjnym miejscem zamieszkania. Sprawną komunikację między Rembertowem a centrum stolicy zapewniają linie Szybkiej Kolei Miejskiej (podróż trwa zaledwie 15 minut). Charakterystycznym rysem dzielnicy są obiekty wojskowe: Akademia Obrony Narodowej, Centralne Archiwum Wojskowe oraz Wojskowy Instytut Chemii i Radiometrii.
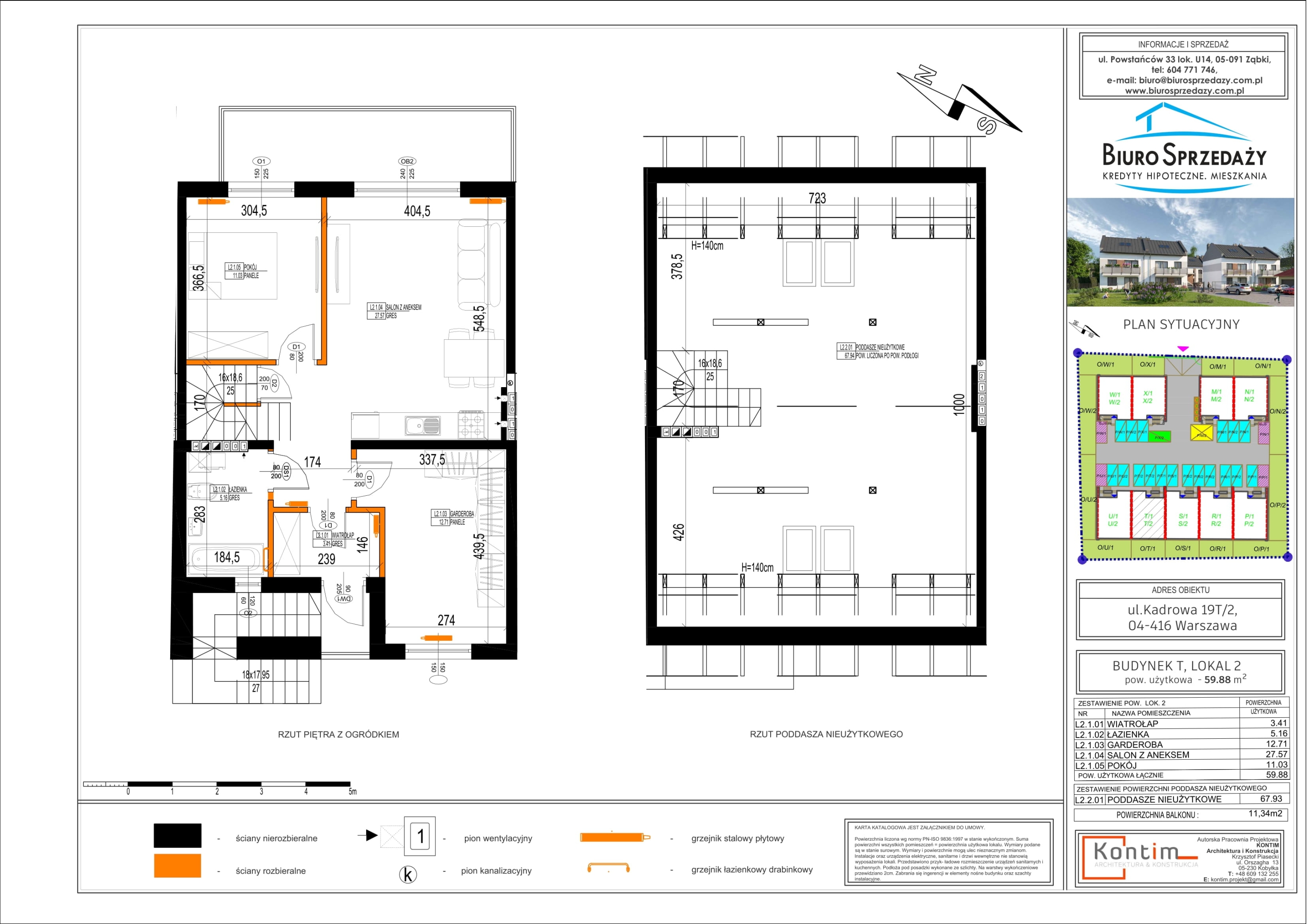
Powierzchnia użytkowa: 59.88 m²
Wiatrołap: 3.41 m²
Garderoba: 12.71 m²
Łazienka: 5.16 m²
Salon z aneksem: 27.57 m²
Pokój: 11.03 m²
Dane nieruchomości
- balkon
- parking wewnętrzny
- aneks kuchenny
- dwupoziomowe
Dane adresowe
Mapay ciepła inwestycji
O inwestycji
Oferty nieruchomości
- Nazwa
- Powierzchnia użytkowa
- Dodatkowa powierzchnia
- Liczba pokoi
- Piętro
- Cena brutto
- Dostępność
- 19M-1
- 57.57 m2
- 3
- 0
- Wolne
- Zobacz
- 19M-2
- 54.81 m2
- 3
- 1
- Wolne
- Zobacz
- 19R-1
- 61.9 m2
- 3
- 0
- Wolne
- Zobacz
- 19R-2
- 59.88 m2
- 3
- 1
- Wolne
- Zobacz
- 19S-1
- 61.9 m2
- 3
- 0
- Wolne
- Zobacz
- 19S-2
- 59.88 m2
- 3
- 0
- Wolne
- Zobacz
- 19T-1
- 61.9 m2
- 3
- 0
- Wolne
- Zobacz
- 19T-2
- 59.88 m2
- 3
- 0
- Wolne
- Zobacz
- 19X-1
- 57.57 m2
- 3
- 0
- Wolne
- Zobacz
- 19X-2
- 54.81 m2
- 3
- 0
- Wolne
- Zobacz
