4 – 59, Osiedle Andersa - Ząbki
Id: 760
-
Cena Zapytaj
-
Powierzchnia 55.32 m2
-
Typ nieruchomości
nowe mieszkanie
-
Liczba pokoi 3
-
Łazienki
1
Opis nieruchomości
Osiedle „Andersa 3”
Inwestycja Andersa 3 to nowe miejsce na mapie podwarszawskich Ząbek. Na nowo powstałej ulicy, na obrzeżach Warszawy, gdzie oczekiwania mieszkańców nakierowane są na nowoczesne budownictwo oferujące najbardziej poszukiwane rozkłady 2 i 3 pokojowych mieszkań.
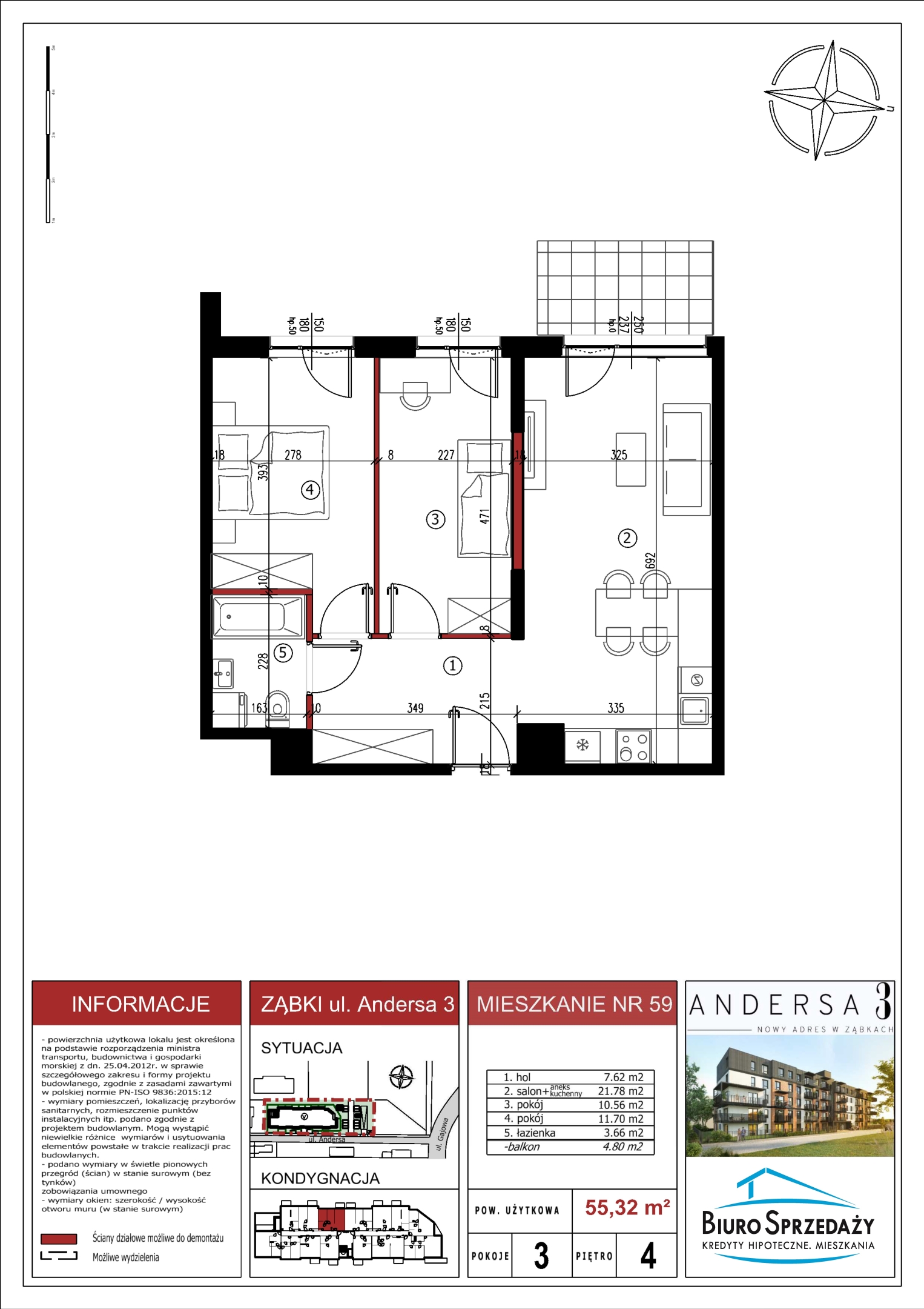
Całkowita powierzchnia mieszkania: 55,32 m²
Hol: 7,62 m²
Salon aneksem kuchennym: 21,78 m²
Pokój: 10,56 m²
Pokój: 11,70 m²
Łazienka: 3,66 m²
Balkon: 4,80 m²
Dane nieruchomości
Powierzchnia:
55.32 m2
Cena:
Zapytaj
Cena za m2
Zapytaj
Dostępność
Wolne
Typ nieruchomości
nowe mieszkanie
Typ budynku
wielomieszkaniowa
Przeznaczenie
mieszkaniowy
Faza budowy
w budowie
Rok zakończenia budowy
2024
Planowany termin oddania do użytku
Zapytaj
Standard
deweloperski
Materiał
-
Ogrzewanie
-
Kanalizacja
-
Kondygnacje
-
Piętro
4
Pokoje
3
Łazienki
1
Dodatkowy obszar
- balkon
Udogodnienia
-
Funkcjonalności
- aneks kuchenny
Dane adresowe
Miejscowość:
Ząbki
Kod kraju:
PL
Kod pocztowy:
05-091
Województwo:
Mazowieckie
Ulica:
Andersa
Powiat:
Wołomiński
Nr budynku:
3
Mapay ciepła inwestycji
Dzięki widokowi map ciepła możesz sprawdzić mocne i spłabe strony lokalizacji.
O inwestycji
Oferty nieruchomości
- Nazwa
- Powierzchnia użytkowa
- Dodatkowa powierzchnia
- Liczba pokoi
- Piętro
- Cena brutto
- Dostępność
- 0 – 1
- 40.33 m2
- 2
- 0
- Wolne
- Zobacz
- 0 – 2
- 41.66 m2
- 2
- 0
- Wolne
- Zobacz
- 0 – 3
- 42.12 m2
- 2
- 0
- Wolne
- Zobacz
- 0 – 5
- 83.72 m2
- 4
- 0
- Wolne
- Zobacz
- 0 – 6
- 55.32 m2
- 3
- 0
- Wolne
- Zobacz
- 0 –7
- 56.16 m2
- 3
- 0
- Wolne
- Zobacz
- 0 – 8
- 41.96 m2
- 2
- 0
- Wolne
- Zobacz
- 0 – 9
- 40.42 m2
- 1
- 0
- Wolne
- Zobacz
- 0 – 10
- 50.62 m2
- 2
- 0
- Wolne
- Zobacz
- 0 – 11
- 80.04 m2
- 3
- 0
- Wolne
- Zobacz
- 0 – 12
- 64.83 m2
- 3
- 0
- Wolne
- Zobacz
- 1 – 13
- 40.33 m2
- 2
- 1
- Wolne
- Zobacz
- 1 – 14
- 41.74 m2
- 2
- 1
- Wolne
- Zobacz
- 1 – 15
- 42.2 m2
- 2
- 1
- Wolne
- Zobacz
- 1 – 16
- 97.83 m2
- 4
- 1
- Wolne
- Zobacz
- 1 – 17
- 39.57 m2
- 1
- 1
- Wolne
- Zobacz
- 1 – 18
- 44.32 m2
- 2
- 1
- Wolne
- Zobacz
- 1 – 19
- 55.32 m2
- 3
- 1
- Wolne
- Zobacz
- 1 – 20
- 56.16 m2
- 3
- 1
- Wolne
- Zobacz
- 1 – 21
- 41.96 m2
- 2
- 1
- Wolne
- Zobacz
- 1 – 22
- 40.42 m2
- 2
- 1
- Wolne
- Zobacz
- 1 – 23
- 50.62 m2
- 2
- 1
- Wolne
- Zobacz
- 1 – 24
- 80.04 m2
- 3
- 1
- Wolne
- Zobacz
- 1 – 25
- 64.84 m2
- 3
- 1
- Wolne
- Zobacz
- 2 – 27
- 40.33 m2
- 2
- 2
- Wolne
- Zobacz
- 2 – 28
- 41.74 m2
- 2
- 2
- Wolne
- Zobacz
- 2 – 29
- 42.2 m2
- 2
- 2
- Wolne
- Zobacz
- 2 – 30
- 97.83 m2
- 4
- 2
- Wolne
- Zobacz
- 2 – 31
- 39.56 m2
- 1
- 2
- Wolne
- Zobacz
- 2 – 32
- 44.32 m2
- 2
- 2
- Wolne
- Zobacz
- 2 – 33
- 55.32 m2
- 3
- 2
- Wolne
- Zobacz
- 2 – 34
- 56.16 m2
- 3
- 2
- Wolne
- Zobacz
- 2 – 35
- 41.96 m2
- 2
- 2
- Wolne
- Zobacz
- 2 – 36
- 40.42 m2
- 2
- 2
- Wolne
- Zobacz
- 2 –37
- 50.62 m2
- 2
- 2
- Wolne
- Zobacz
- 2 – 38
- 80.04 m2
- 3
- 2
- Wolne
- Zobacz
- 2 – 39
- 64.84 m2
- 3
- 2
- Wolne
- Zobacz
- 2 – 40
- 40.27 m2
- 2
- 2
- Wolne
- Zobacz
- 3 – 41
- 40.33 m2
- 2
- 3
- Wolne
- Zobacz
- 3 – 42
- 41.74 m2
- 2
- 3
- Wolne
- Zobacz
- 3 – 43
- 104.12 m2
- 4
- 3
- Wolne
- Zobacz
- 3 – 45
- 44.32 m2
- 2
- 3
- Wolne
- Zobacz
- 3 – 46
- 55.32 m2
- 3
- 3
- Wolne
- Zobacz
- 3 – 48
- 41.96 m2
- 2
- 3
- Wolne
- Zobacz
- 3 – 49
- 40.42 m2
- 2
- 3
- Wolne
- Zobacz
- 3 – 50
- 50.62 m2
- 2
- 3
- Wolne
- Zobacz
- 3 – 51
- 80.04 m2
- 3
- 3
- Wolne
- Zobacz
- 3 – 52
- 64.84 m2
- 3
- 3
- Wolne
- Zobacz
- 3 – 53
- 40.27 m2
- 2
- 3
- Wolne
- Zobacz
- 3 – 47
- 56.16 m2
- 3
- 3
- Wolne
- Zobacz
- 4 – 54
- 40.33 m2
- 2
- 4
- Wolne
- Zobacz
- 4 – 55
- 41.74 m2
- 2
- 4
- Wolne
- Zobacz
- 4 – 56
- 104.12 m2
- 4
- 4
- Wolne
- Zobacz
- 4 – 57
- 39.57 m2
- 1
- 4
- Wolne
- Zobacz
- 4 – 58
- 44.32 m2
- 2
- 4
- Wolne
- Zobacz
- 4 – 59
- 55.32 m2
- 3
- 4
- Wolne
- Zobacz
- 4 – 64
- 80.04 m2
- 3
- 4
- Wolne
- Zobacz
- 4 – 65
- 64.84 m2
- 3
- 4
- Wolne
- Zobacz
- 4 – 66
- 40.27 m2
- 2
- 4
- Wolne
- Zobacz
- 4 – 63
- 55.62 m2
- 2
- 4
- Wolne
- Zobacz
