M18, Corso - Łódź
-
Cena 563510 zł
-
Powierzchnia 60.92 m2
-
Typ nieruchomości
nowe mieszkanie
-
Liczba pokoi 3
-
Łazienki
1
-
Cena za m2 9250 zł
Opis nieruchomości
Corso to wieloetapowa Inwestycja mieszkaniowa, której realizacja odmieni łódzką dzielnicę Polesie.
Realizacja Inwestycji zakłada budowę nowoczesnego osiedla złożonego z 13 budynków mieszkalno-usługowych. Centralnym punktem spajającym całą Inwestycję będzie „Corso” – reprezentacyjny deptak z pełną roślinności strefą relaksu i atrakcyjnym pasażem usługowo-gastronomicznym wzdłuż ulicy. Zwieńczeniem deptaku będzie okazały skwer miejski z dużą ilością zieleni i kawiarnią w nowoczesnym budynku o kształcie okręgu.
W Corso każdy znajdzie swoje wymarzone cztery kąty z widokiem na deptak, patio lub okolicę! Na przyszłych mieszkańców Inwestycji czekają funkcjonalne mieszkania o różnorodnych metrażach, wkomponowane w nowoczesną architekturę każdego budynku.
Corso to dobry wybór miejsca do życia! W I etapie Inwestycji znajdzie się łącznie 112 lokali o powierzchni od 32 do 100 m². Przyszli mieszkańcy będą mogli wybrać wymarzone M spośród lokali 1-, 2-, 3-, 4- i 5-pokojowych z przynależącym przestronnym balkonem, tarasem lub zielonym ogródkiem.
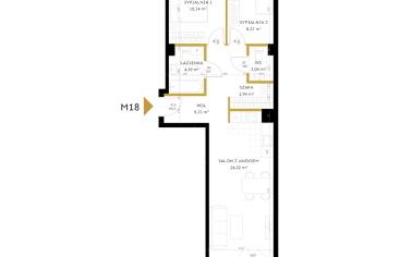
Całkowita powierzchnia: 60,92
Salon z aneksem: 24,02 m²
Sypialnia: 10,24 m²
Sypialnia: 8,27 m²
Szafa: 2,94 m²
WC: 2,04 m²
Łazienka: 4,19 m²
Hol: 9,22 m²
Balkon: 5,27 m²
Cechy szczególne Inwestycji:
-
Reprezentacyjny deptak
-
Skwer miejski z kawiarnią
-
Parking podziemny i naziemny
-
Miejsca parkingowe dla jednośladów i rowerownie
-
Place zabaw
-
Market spożywczy
-
Lokale usługowe i gastronomiczne
-
Instalacja pod wideodomofony
-
Cichobieżne windy
-
Oświetlenie LED
Dane nieruchomości
- balkon
- winda
- pomieszczenie na rowery
-
-
Dane adresowe
Mapay ciepła inwestycji
O inwestycji
Oferty nieruchomości
- Nazwa
- Powierzchnia użytkowa
- Dodatkowa powierzchnia
- Liczba pokoi
- Piętro
- Cena brutto
- Dostępność
- M1
- 46.85 m2
- 2
- 1
- 456787 zł
- Wolne
- Zobacz
- M2
- 95.72 m2
- 5
- 1
- 837550 zł
- Wolne
- Zobacz
- M5
- 32.88 m2
- 1
- 1
- 343596 zł
- Wolne
- Zobacz
- M6
- 32.9 m2
- 1
- 1
- 343805 zł
- Wolne
- Zobacz
- M7
- 33.02 m2
- 1
- 1
- 345059 zł
- Wolne
- Zobacz
- M8
- 60.92 m2
- 3
- 1
- 563510 zł
- Wolne
- Zobacz
- M10
- 39.97 m2
- 2
- 1
- 404680 zł
- Wolne
- Zobacz
- M11
- 46.85 m2
- 2
- 2
- 456787 zł
- Wolne
- Zobacz
- M12
- 95.79 m2
- 4
- 2
- 828583 zł
- Wolne
- Zobacz
- M13
- 64.04 m2
- 3
- 2
- 585966 zł
- Wolne
- Zobacz
- M15
- 32.88 m2
- 1
- 2
- 343596 zł
- Wolne
- Zobacz
- M16
- 32.9 m2
- 1
- 2
- 343805 zł
- Wolne
- Zobacz
- M17
- 33.02 m2
- 1
- 2
- 345059 zł
- Wolne
- Zobacz
- M18
- 60.92 m2
- 3
- 2
- 563510 zł
- Wolne
- Zobacz
- M20
- 39.87 m2
- 2
- 2
- 404680 zł
- Wolne
- Zobacz
- M21
- 46.85 m2
- 2
- 3
- 456787 zł
- Wolne
- Zobacz
- M22
- 95.79 m2
- 4
- 3
- 828583 zł
- Wolne
- Zobacz
- M23
- 64.04 m2
- 3
- 3
- 585966 zł
- Wolne
- Zobacz
- M25
- 32.88 m2
- 1
- 3
- 343596 zł
- Wolne
- Zobacz
- M27
- 33.02 m2
- 1
- 3
- 345059 zł
- Wolne
- Zobacz
- M28
- 60.92 m2
- 3
- 3
- 563510 zł
- Wolne
- Zobacz
- M31
- 46.85 m2
- 2
- 4
- 456787 zł
- Wolne
- Zobacz
- M32
- 95.79 m2
- 4
- 4
- 828583 zł
- Wolne
- Zobacz
- M33
- 64.04 m2
- 2
- 4
- 585966 zł
- Wolne
- Zobacz
- M35
- 32.88 m2
- 1
- 4
- 343596 zł
- Wolne
- Zobacz
- M37
- 33.02 m2
- 1
- 4
- 345059 zł
- Wolne
- Zobacz
- M38
- 60.92 m2
- 3
- 4
- 563510 zł
- Wolne
- Zobacz
- M40
- 39.87 m2
- 2
- 4
- 404680 zł
- Wolne
- Zobacz
- M41
- 46.85 m2
- 2
- 5
- 456787 zł
- Wolne
- Zobacz
- M42
- 95.79 m2
- 4
- 5
- 828583 zł
- Wolne
- Zobacz
- M42
- 95.79 m2
- 4
- 5
- 585966 zł
- Wolne
- Zobacz
- M43
- 64.04 m2
- 3
- 5
- 585966 zł
- Wolne
- Zobacz
- M45
- 32.88 m2
- 1
- 5
- 343596 zł
- Wolne
- Zobacz
- M47
- 33.02 m2
- 1
- 5
- 345059 zł
- Wolne
- Zobacz
- M48
- 60.92 m2
- 3
- 2
- 563510 zł
- Wolne
- Zobacz
- M53
- 62.26 m2
- 3
- 1
- 575905 zł
- Wolne
- Zobacz
- M54
- 33.26 m2
- 1
- 1
- 347567 zł
- Wolne
- Zobacz
- M55
- 32.15 m2
- 1
- 1
- 335967 zł
- Wolne
- Zobacz
- M56
- 32.83 m2
- 1
- 1
- 343073 zł
- Wolne
- Zobacz
- M57
- 71.15 m2
- 3
- 1
- 651022 zł
- Wolne
- Zobacz
- M58
- 58.69 m2
- 3
- 1
- 542882 zł
- Wolne
- Zobacz
- M59
- 84.85 m2
- 4
- 1
- 742437 zł
- Wolne
- Zobacz
- M63
- 62.17 m2
- 3
- 2
- 575072 zł
- Wolne
- Zobacz
- M64
- 33.26 m2
- 1
- 2
- 347567 zł
- Wolne
- Zobacz
- M65
- 32.15 m2
- 1
- 2
- 335967 zł
- Wolne
- Zobacz
- M66
- 32.91 m2
- 1
- 2
- 343909 zł
- Wolne
- Zobacz
- M67
- 71.15 m2
- 3
- 3
- 651022 zł
- Wolne
- Zobacz
- M68
- 58.7 m2
- 3
- 2
- 542975 zł
- Wolne
- Zobacz
- M69
- 84.91 m2
- 4
- 2
- 734471 zł
- Wolne
- Zobacz
- M73
- 62.17 m2
- 3
- 3
- 575072 zł
- Wolne
- Zobacz
- M75
- 32.23 m2
- 1
- 3
- 336803 zł
- Wolne
- Zobacz
- M76
- 32.96 m2
- 1
- 3
- 344432 zł
- Wolne
- Zobacz
- M77
- 71.15 m2
- 3
- 3
- 651022 zł
- Wolne
- Zobacz
- M78
- 58.7 m2
- 3
- 3
- 542975 zł
- Wolne
- Zobacz
- M79
- 84.91 m2
- 4
- 3
- 734471 zł
- Wolne
- Zobacz
- M83
- 62.19 m2
- 3
- 4
- 575257 zł
- Wolne
- Zobacz
- M85
- 32.24 m2
- 1
- 4
- 336803 zł
- Wolne
- Zobacz
- M86
- 32.96 m2
- 1
- 4
- 344432 zł
- Wolne
- Zobacz
- M87
- 71.15 m2
- 3
- 4
- 651022 zł
- Wolne
- Zobacz
- M88
- 58.7 m2
- 3
- 4
- 542975 zł
- Wolne
- Zobacz
- M89
- 84.91 m2
- 4
- 4
- 734471 zł
- Wolne
- Zobacz
- M93
- 62.19 m2
- 3
- 5
- 575257 zł
- Wolne
- Zobacz
- M95
- 32.28 m2
- 1
- 5
- 337326 zł
- Wolne
- Zobacz
- M97
- 71.15 m2
- 3
- 5
- 651022 zł
- Wolne
- Zobacz
- M98
- 58.7 m2
- 3
- 5
- 542975 zł
- Wolne
- Zobacz
- M99
- 84.91 m2
- 4
- 5
- 734471 zł
- Wolne
- Zobacz
- M101
- 39.15 m2
- 2
- 6
- 448267 zł
- Wolne
- Zobacz
- M103
- 100.56 m2
- 5
- 6
- 1111188 zł
- Wolne
- Zobacz
- M104
- 32.78 m2
- 1
- 6
- 375331 zł
- Wolne
- Zobacz
- M105
- 33.16 m2
- 1
- 6
- 379682 zł
- Wolne
- Zobacz
- M106
- 91.01 m2
- 4
- 6
- 1005660 zł
- Wolne
- Zobacz
- M109
- 100.56 m2
- 5
- 7
- 910068 zł
- Wolne
- Zobacz
- M110
- 32.78 m2
- 1
- 7
- 375331 zł
- Wolne
- Zobacz
- M111
- 33.16 m2
- 1
- 7
- 379682 zł
- Wolne
- Zobacz
