11A, Podleśna Homes - Malcanów
-
Cena Zapytaj
-
Powierzchnia 168.55 m2
-
Typ nieruchomości
nowy dom
-
Liczba pokoi 5
Opis nieruchomości
Domy położone są w bezpośrednim sąsiedztwie dużego kompleksu leśnego Lasów Państwowych. Oddanie autostrady i dróg ekspresowych A2/S2 i S17 oraz budowa węzłów drogowych istotnie wpłynęły na skrócenie czasu dojazdu do Warszawy i innych miejscowości.
W najbliższym sąsiedztwie znajduje się pełna infrastruktura handlowo-usługowa i społeczna:
• sklepy - 3 min (samochodem)
• Centrum Rozrywki Majaland - 14 min (samochodem)
• Szkoła - 3 min (samochodem)
• Przystanek autobusowy do Warszawy - 8 min (pieszo)
• Salon kosmetyczny - 3 min (samochodem)
• Siłownia zewnętrzna - 7 min (pieszo)
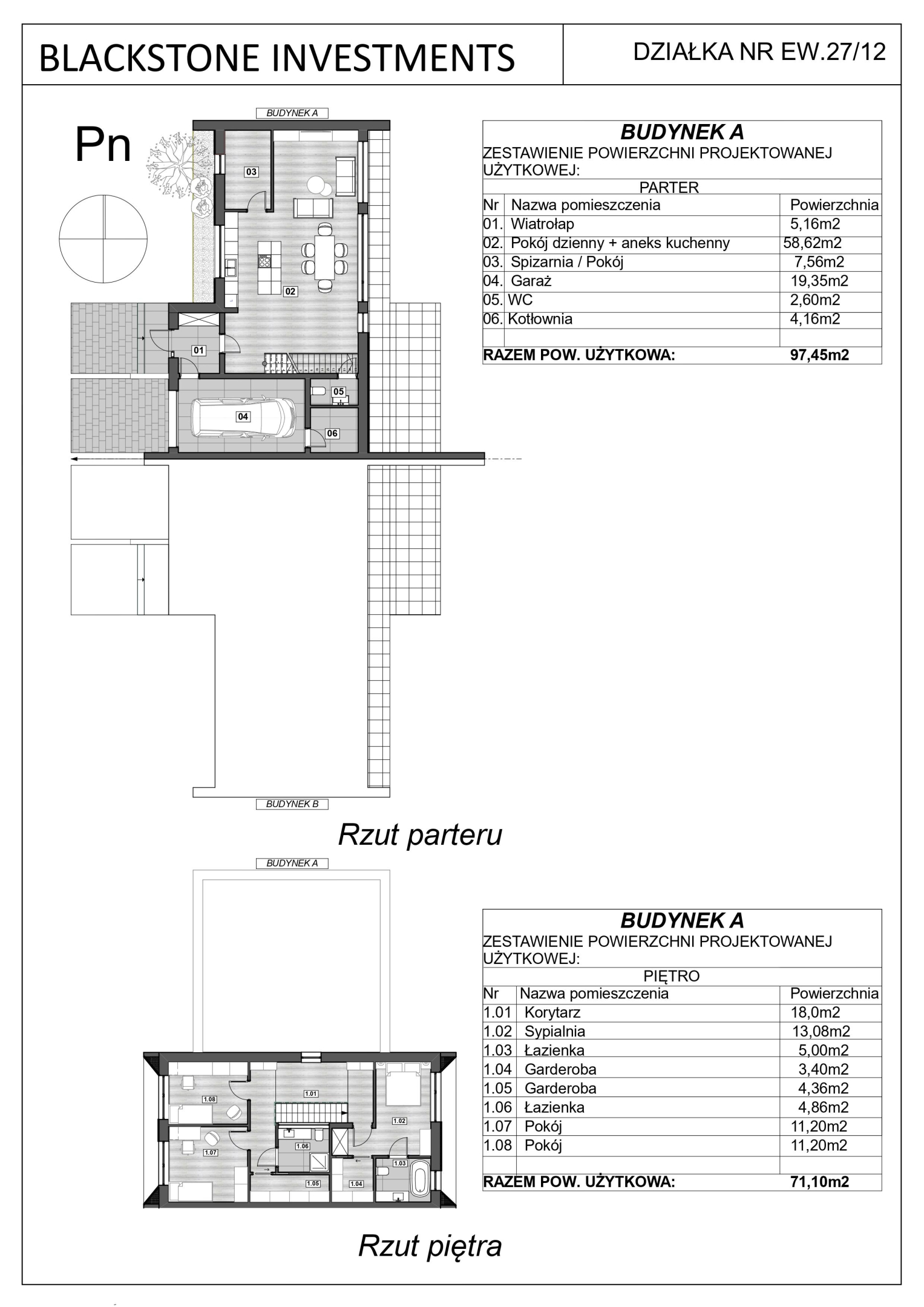
Metraż: 168,55 m2
W skład lokalu wchodzi:
Parter:
· Wiatrołap (5,16m2)
· Pokój dzienny + aneks kuchenny (58,62m2)
· Spiżarnia / Pokój (7,56m2)
· Garaż (19,35m2)
· WC (2,60m2)
· Kotłownia (4,16m2)
RAZEM POW. UŻYTKOWA: 97,45m2
PIĘTRO:
· Korytarz (18,0m2)
· Sypialnia (13,08m2)
· Łazienka (5,00m2)
· Garderoba (3,40m2)
· Garderoba (4,36m2)
· Łazienka (4,86m2)
· Pokój (11,20m2)
· Pokój (11,20m2)
RAZEM POW. UŻYTKOWA: 71,10m2
Lokalizacja:
- ul. Podleśna, 05-462 Malcanów
Dane nieruchomości
- taras
- ogródek
- garaż
- aneks kuchenny
- dwupoziomowe
- rozwiązania ekologiczne
Dane adresowe
Mapay ciepła inwestycji
O inwestycji
Oferty nieruchomości
- Nazwa
- Powierzchnia użytkowa
- Dodatkowa powierzchnia
- Liczba pokoi
- Piętro
- Cena brutto
- Dostępność
- 8
- 168.55 m2
- 5
- 0
- Zarezerwowane
- Zobacz
- 11A
- 168.55 m2
- 5
- 0
- Zarezerwowane
- Zobacz
- 11B
- 168.55 m2
- 5
- 0
- 1190000 zł
- Wolne
- Zobacz
- 12A
- 168.55 m2
- 5
- 0
- 1190000 zł
- Wolne
- Zobacz
- 12B
- 168.55 m2
- 5
- 0
- 1190000 zł
- Wolne
- Zobacz

